

The Cottages of Durham offers 2- to 5-bedroom shared apartments with private rooms, making it an ideal choice for off-campus housing at the University of New Hampshire. Located just a 5-minute drive from the University of New Hampshire and around 18 minutes from Great Bay Community College, this housing community provides students with convenient access to two of the region’s most prominent institutions. Surrounded by a welcoming, student-friendly neighborhood, it creates the perfect balance between academic focus and social connection in the heart of New Hampshire.
Durham, NH, is more than just a college town; it’s an academic and cultural hub that blends history, nature, and student life effortlessly. With a student population of over 15,000. Apartments near the University of New Hampshire are largely driven by the nearby universities. The town has earned a reputation for being one of the most student-centric communities in the state. Durham is known for its safety, maintaining a low crime rate at 7.2 out of 10, which makes it a secure choice for students and their families. It also boasts a high happiness index and a robust employment rate of over 96%, offering strong prospects for students after graduation. The town’s historic roots, tree-lined streets, and close-knit feel add character to everyday life. Apartments for rent near Durham, NH, are conveniently located so students can explore nearby walking trails, local cafes, bookstores, and weekend farmers markets, creating an ideal environment to live, study, and grow. Whether you’re moving here for the first time or returning for another academic year, The Cottages of Durham welcomes you. It’s a community where student success is supported by a nurturing environment and countless opportunities.
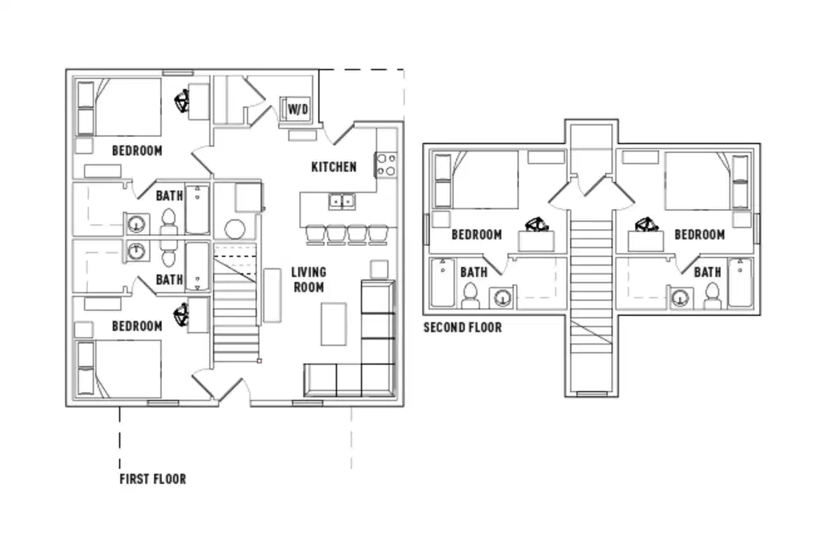
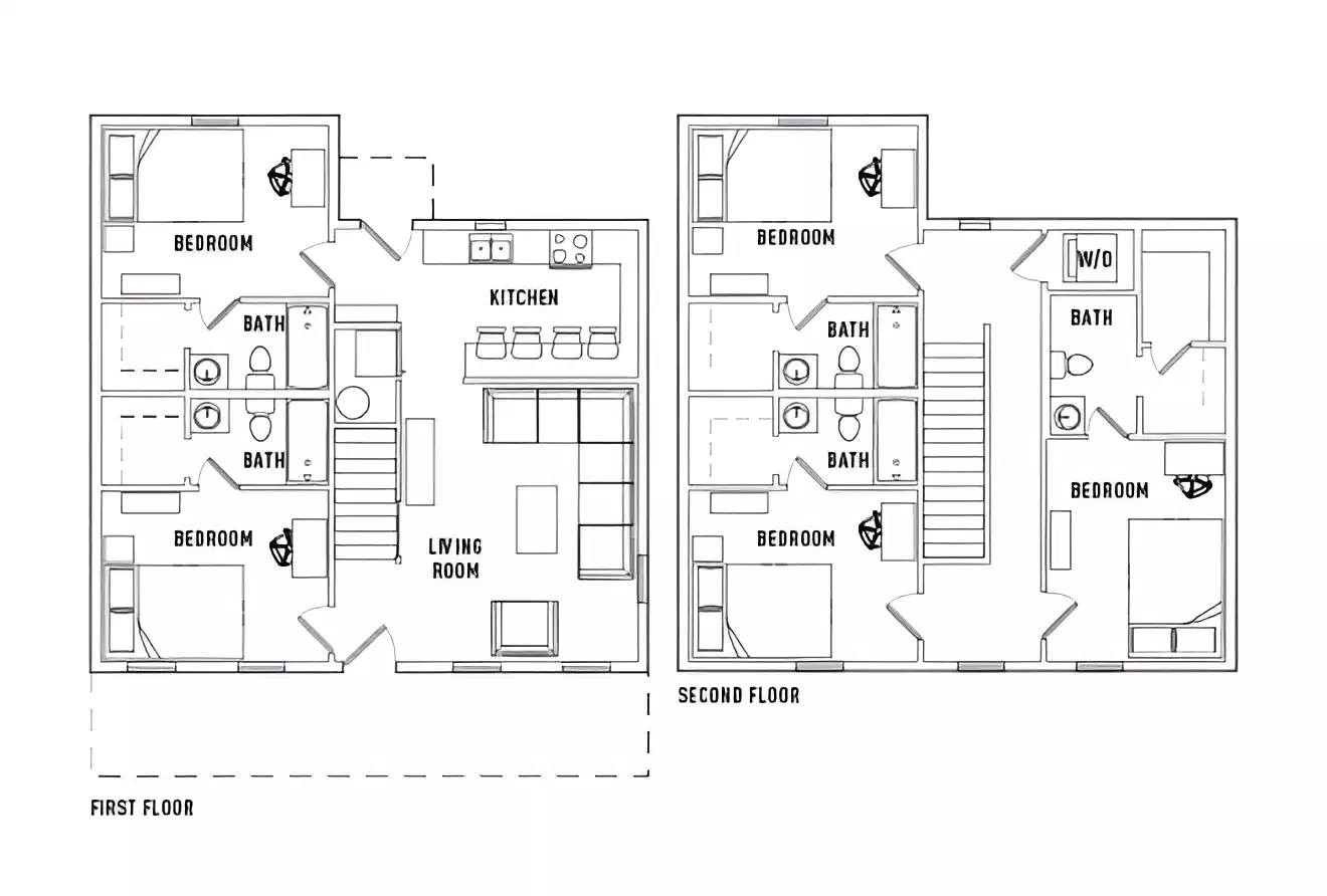
The Cottages of Durham offers spacious student accommodations ranging from 2- to 5-bedroom shared apartments, providing private rooms with private bathrooms and a shared kitchen, making it ideal for students who want the right mix of privacy and community. Each unit features fully furnished cottages designed for comfort and convenience. The interiors are equipped with ceiling fans in the living room, along with premium stainless steel appliances like a full-sized refrigerator, oven/range, microwave, and dishwasher, making cooking hassle-free. Added touches, such as walk-in closets for extra storage spaces and a full-sized stackable washer and dryer, the Cottages of Durham provide practical living solutions that students love.
Students frequently mention the property's well-rounded lifestyle offerings in The Cottages of Durham reviews and the Cottages of Durham photos. Outside your room, enjoy access to impressive common amenities, including a 24-hour fitness center stocked with free weights, cardio machines, and strength equipment for fitness enthusiasts. Unwind in the oversized hot tub, sauna, or at the outdoor fireplace, providing convenient relaxation. Focused on academics? Head to the academic success center, equipped with iMacs, free printing services, and private study lounges for focused study sessions. The Cottages of Durham also provides Social spots like the bark park, multimedia area, and social lounge, making meeting new people easy. With internet, trash, and Wi-Fi throughout the community included in rent, making student budgeting easy, plus services like roommate matching for synergy and weekend shuttle access adding extra convenience, The Cottages of Durham delivers comfort and convenience at every turn.
Located in a student-friendly and accessible neighborhood, The Cottages of Durham places you right in the center of everything you need. Just minutes away from the University of New Hampshire, students will find commuting effortless. But it’s not just about the academics; this location brings a complete lifestyle package right to your doorstep.
For everyday essentials, students can shop at Hannaford Supermarket, located just a 7-minute drive away, or grab quick items from Durham Convenience, only 5 minutes from the property. CVS Pharmacy is also nearby for any urgent medical or health needs. When hunger strikes, Durham doesn’t disappoint. Enjoy brunch or coffee at the cozy The Freedom Cafe of Durham, or head to Dunkin' for a healthy bite between study sessions. If you’re in the mood for something filling, Franz's Food and Bamee Restaurant are student favorites, serving up classic American fare with a twist. For nightlife, Durham offers UNH Dairy Bar and Scorpions Bar & Grill.
Looking to socialize or relax after class? Check out Clark's American Bistro or Hop + Grind, both located in downtown Durham, offering lively vibes and comfort food. For nature lovers and explorers, the College Woods Nature Preserve and Oyster River Trails offer peaceful escapes with scenic views just a short walk or bike ride away.
The property’s proximity to the Memorial Union Building (MUB) and T-Hall Lawn also means you’re never far from student events, clubs, and live performances. Need a quick escape? Downtown Portsmouth and the New Hampshire Seacoast are under half an hour away, offering vibrant nightlife, history, and coastal views.
The Cottages of Durham offer excellent travel accessibility for students, as the property is located directly on the UNH Wildcat Transit bus route, such as Clubhouse @ Cottages of Durham and Technology Drive @ Manor Drive, offering free and reliable transit to and from the University of New Hampshire and nearby areas. From the Cottages of Durham, the Durham Amtrak Station, just 5 minutes away, connects students to major cities like Boston and Portland. For air travel, Portsmouth International Airport (PSM) is a half-hour drive, while Boston Logan International Airport provides flight connections to the city. Students also have access to rideshare options like Uber and Lyft. Visit the UNH Wildcat Transit site for routes and schedules. The Cottages of Durham blends comfort, convenience, and community, making student life in Durham truly unforgettable.
The typical lease term is approximately 11.5 months of occupancy which coincides with the university’s academic calendar. The resident is charged a total rent amount for the contracted occupancy period. The lease agreement will reflect the total rent amount typically divided into 12 equal installments due August 1 - July 1. These installments do not represent a monthly rent amount and are not prorated. Installments are due on the 1st of each month per the payment schedule outlined in the lease agreement.
They accept credit cards, debit cards and ACH payments online through their Resident Portal. We are unable to accept cash.
A resident can act as their own guarantor if they can show documentation as outlined in the lease agreement that they have income greater than three times the rental installment. The guarantor will need to sign the guaranty agreement. If the resident is not of legal age to execute a contract, the guarantor will be required to sign both the lease and guaranty agreement. All residents require a guarantor to complete the guaranty agreement.
Parking - $10 per installment. $175 Administrative fee due with first installment. Application Fee (Non-Refundable): $25.