

Located at 815 W Abram St, TX 76013, The Arlie Arlington, stands out as a preferred choice for student housing in Arlington, with its convenience and comfort catering specifically to the needs of students. The Arlie Arlington Texas offers shared and private student apartments in Arlington, ensuring every student finds their ideal living arrangement. The Arlie Apartments Arlington TX is near prominent educational institutions, such as the University of Texas at Arlington (UTA) (4-minute drive) and Dallas Baptist University (DBU) (21-minute drive).
Arlington, nestled between Dallas and Fort Worth, is a dynamic Texas city with a population of over 390,000. Known for its blend of entertainment, education, and business, Arlington ranks well for students looking to study and live affordably. The city boasts a strong employment rate of 95.1%, a safety index of 60, and a growing population of international students, who make up nearly 7% of the student body in the region’s universities.
The Airlie offers a calm and convenient student living experience in the heart of Arlington, Texas. Its location provides easy access to local bus lines and well-connected roads, making daily travel to campus or nearby neighborhoods smooth and simple. Students living here can enjoy the perks of urban convenience while having the space to focus on their studies and unwind.
Close to grocery stores, cafés, and recreation spaces, The Airlie supports a well-rounded lifestyle. Its setup makes it ideal for students enrolled in nearby institutions or those seeking off-campus apartments near UT Arlington and other top colleges in Texas. With a focus on comfort and practicality, The Airlie offers the perfect blend of peace and productivity for student life in Arlington.
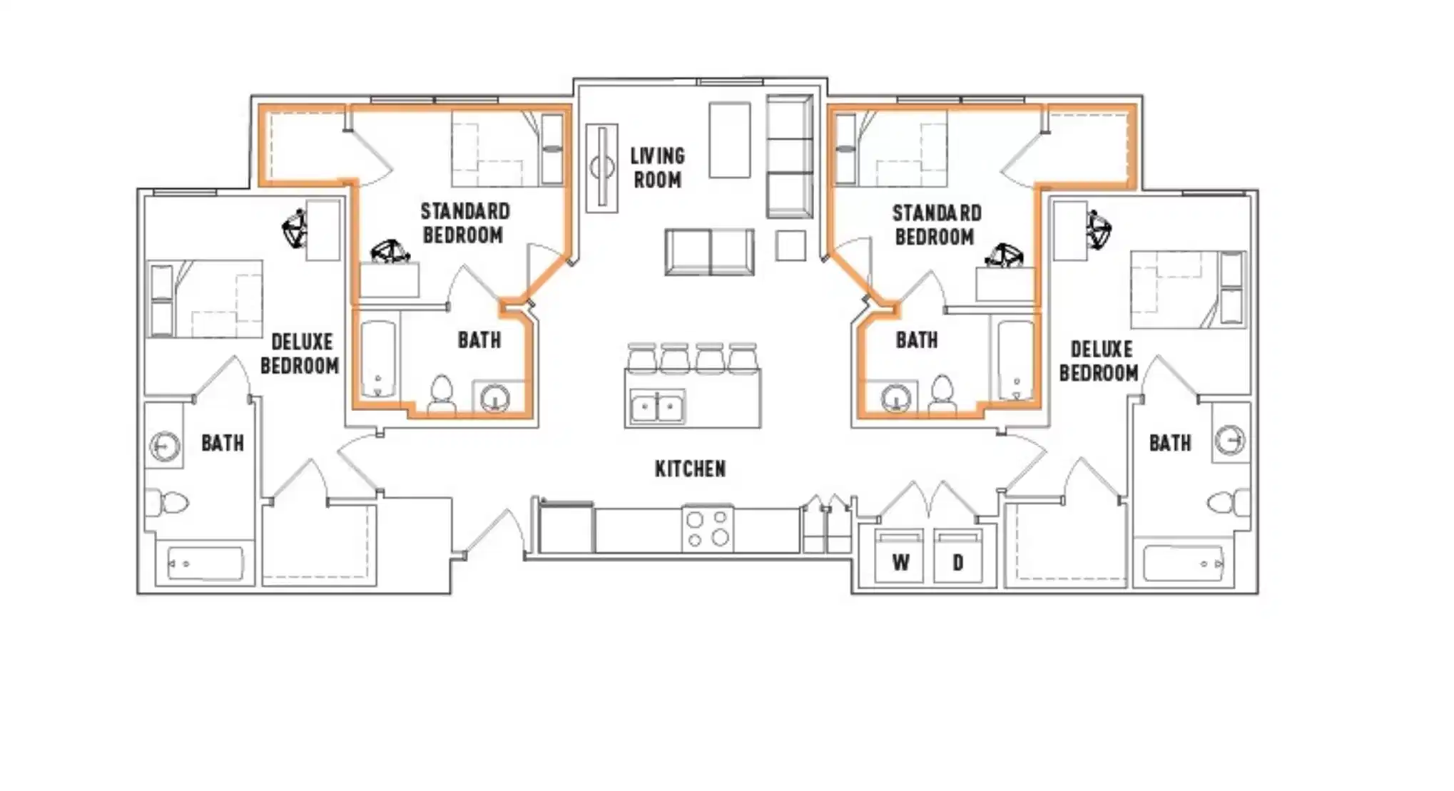
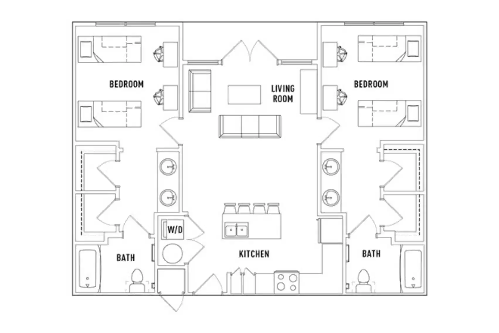
At The Arlie Arlington TX, students seeking sophisticated and comfortable Arlington student housing will discover a perfect blend of style and convenience. Arlie Apartments Arlington has a range of room types, including 2 Bed 2 Bath, 4 Bed 4 Bath, 1 Bed 1 Bath, and 3 Bed 3 Bath. The Arlie, Arlington offers thoughtfully designed student housing with fully furnished layouts and modern finishes. Each apartment features hardwood-style floors, ceiling fans, and a leather-style sectional sofa, coffee table, and entertainment center for a cozy vibe. Cook with ease in a stylish kitchen featuring granite kitchen countertops and stainless steel appliances. Keep things cool with a full-sized fridge and ice maker, and bake or sauté with the electric oven/range. Cleanup’s a breeze with a dishwasher, garbage disposal, and quick reheats in the microwave. A built-in dining area with chairs adds function and style.
Private bedrooms come with full-sized beds, dressers, walk-in closets, study desks, and chairs, ensuring both comfort and productivity. Select units include private balconies or private patios. Every unit has a washer, dryer, and sprinkler system for safety and convenience. Your rent includes G2b® high-speed internet up to 1 Gbps, water, sewer, and WiFi, so you can focus on student life without surprise bills. Enjoy a community with educational, social, and recreational activities. Stay entertained in the multimedia area with gaming systems and a recreation center with billiards, foosball, and arcade games. The swimming pool with hot tub, sundeck, and outdoor fire pit is perfect for downtime, while the outdoor gaming area with ping pong and professional BBQ grills makes socializing easy. Pet owners will love the on-site dog park.
For fitness, enjoy a state-of-the-art fitness center with strength equipment, cardio machines, free weights, and a separate cardio room. Academics are supported through the academic success center with iMacs, a group study lounge with a coffee bar, and private study lounges with smart TVs, all designed with enhanced-privacy floor plans for study. Extra perks include bike storage, garage parking available, and self-service roommate matching powered by Roomsync. The Arlie Arlington is just steps from the University of Texas at Arlington and offers convenient access to the Tarrant County Community College – Southeast Campus, UTA Bookstore, and Maverick Stadium.
With individual liability leases, individually locking bedroom doors, a limited access community, 24-hour, on-call staff, a courtesy patrol officer, and professional, on-site management and maintenance, The Arlie offers secure, student-centered living in Arlington.
The Arlie Arlington is positioned in a rich city that offers students a perfect blend of educational prowess and social hangouts. Institutions such as the Texas Wesleyan University and Arlington Baptist University are prominent in the city, fueling a robust academic atmosphere. The Arlie Apartments are ideally situated among a range of local cafes, restaurants, and social spots, ensuring that students have ample choices for relaxation and study breaks.
Just a short stroll from The Arlie Arlington, caffeine enthusiasts can enjoy a warm brew at the nearby Good Day Cafe or Inclusion Coffee. Both are perfect for those early study mornings or casual meet-ups with friends. For foodies, there’s an array of dining options ranging from the classic sandwiches at The Tin Cup to the tantalizing Royal Nepal TX Bar and Grill. Evening entertainment is well-catered for, with laid-back vibes at the Caves Lounge and the lively atmosphere of Sunshine Club, ensuring that students have no shortage of venues to unwind at the end of a busy day.
The necessity of convenient shopping is met with nearby grocery stores such as Kroger, providing healthy and fresh ingredients for those who enjoy home-cooked meals. For medical needs, the Arlington Community Health Center offers peace of mind with its proximity. Students of The Arlie Apartments will find themselves immersed in a culture-rich environment, with top tourist destinations like the Arlington Museum of Art and the Planetarium at the University of Texas at Arlington offering substantial servings of culture and education.
Libraries such as the Arlington Public Library Central Branch provide a haven for book lovers and intense study sessions, while the Gallery at UTA showcases contemporary works, providing a visual feast to art enthusiasts. The social fabric of this community is woven with various student-friendly hangout spaces, including the College Park District, where one can indulge in an amalgam of eateries, shops, and entertainment, and the Levitt Pavilion Arlington for those who savor open-air concerts and performances.
Finding convenient transit options is essential for any student, and those residing at The Arlie Arlington TX have access to prime transportation links that make commuting through Arlington a breeze. Students will appreciate the proximity to Randol Mill & Mill Valley Cir and Randol Mill & Mill Valley bus stops, ensuring they can navigate the city with ease. For those preferring to travel by train, The Arlie Arlington is also well-served by nearby Bell Station and the Trinity Lakes Station. Their strategic location enhances the overall living experience by simplifying travel to various destinations in and around Arlington.
A resident can act as their own guarantor if they can show documentation as outlined in the lease agreement that they have income greater than three times the rental installment.To mitigate the risk of delinquent or defaulting residents, the property require applicants to provide someone to guarantee their housing contract.The guarantor will need to sign the guaranty agreement. If the resident is not of legal age to execute a contract, the guarantor will be required to sign both the lease and guaranty agreement.All residents require a guarantor to complete the guaranty agreement.
The property accept credit cards, debit cards and ACH payments online through their Portal. They are unable to accept cash.
The typical lease term is approximately 11.5 months of occupancy which coincides with the university's academic calendar. The resident is charged a total rent amount for the contracted occupancy period. The lease agreement will reflect the total rent amount typically divided into 12 equal installments due August 1 - July 1. These installments do not represent a monthly rent amount and are not prorated.Installments are due on the 1st of every month per the payment schedule outlined in the lease agreement.
1. You will be required to pay a certain amount as Application and Admin Fees at the time of booking, which is non-refundable. 2. Parking charges as follows: a) Covered Reserved Garage Parking - $40.00 b) Uncovered Reserved Garage Parking - $30.00 c) General Garage Parking - $10.00