Search by

Campus House, Melbourne

172, Bouverie St, Carlton, 3053, Australia
From
AU$459
per week
1.0 mi from City Center
( 9m. 15m. 22m)
See Universities on Map
Highest Floor 14
Built in 2025
Melbourne Business School | 0.09 mi
The University of Melbourne | 0.31 mi
Trinity College | 0.47 mi
Hawthorn-Melbourne | 0.59 mi
RMIT University City Campus | 0.6 mi
Sold out
Pay In Instalment
No Visa No Pay
gym
share bikes
Games Area

Offers (6)

  • Save Up to AU$800+ When You Bundle Your Student Essentials!
  • AU$90 Loyalty Bonus – Rebook Your Stay with Amber!
  • Enjoy Up to AU$90 Cashback When You Book with Friends on Amber!
  • Double the Reward: Get AU$50 Each for Referring a Friend on Amber!
  • Get An Additional AU$20 Cashback By Booking Via The Amber App
  • Save Up to AUD400+ When You Bundle Your Student Essentials!

About the Property

Campus House Melbourne is located in Carlton, Australia, in a quiet Melbourne neighbourhood. This student accommodation in Melbourne offers modern studios, en-suites and non-ensuite rooms. It’s perfect for students seeking comfort and convenience. The University of Melbourne is just a 9-minute walk away, and the Royal Melbourne Institute of Technology is about 6 minutes away by car. Campus House Melbourne provides a cosy and practical home for students in Melbourne.


Melbourne is a great city for students, offering a safe and exciting place to learn in Australia. Its safety index of around 60 ensures students feel secure. The city hosts over 300,000 students, including 100,000 international students, creating a diverse community. With a 75% employment rate, students easily find part-time jobs in Melbourne. The cost of living in Melbourne as a student ranges from AU$ 1,400 to AU$ 1,800 monthly, covering rent, food, and transport. Melbourne provides excellent public transport, parks, and events like the Melbourne Food and Wine Festival. Journal Campus House sits strategically near tram stops, cafes, and Northland Shopping Centre, just a 5-minute drive from local amenities. This prime spot offers quick access to shops and eateries. Melbourne’s unique Yarra River walks and street art scene add charm. The city’s bike-sharing system makes commuting affordable. With Journal Campus House, students enjoy a convenient and fun-filled lifestyle in Melbourne.

Pet policy

Unfortunately, they do not permit pets including fish, birds, or reptiles. However, they do make exceptions for residents who require the assistance of a trained and registered Service Dog or Assistance Dog.

Features

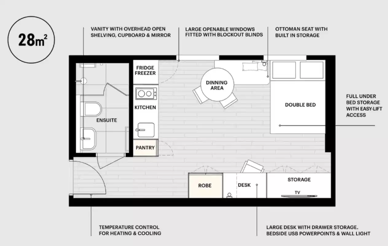
At Campus House Melbourne, students can choose from various room types. Options include the Four-Bedroom Ensuite Apartment, Large Corner Studio, Large Studio, Large Two-Bedroom Apartment, Medium Studio, Standard Studio, and Suite. Each room is designed for comfort and meets student needs. The Campus House Melbourne provides great room amenities. You’ll find a cosy double bed, air conditioning for hot days, and plenty of wardrobe space. There’s also speedy WIFI and USB charging points to keep your devices powered up. For cooking lovers, the microwave and dishwasher are key features. You can choose between a two-burner or four-burner cooktop. Plus, a smart TV keeps entertainment close by. The big windows let in natural light, brightening up study sessions. Also, the under-bed storage and chair add practicality and convenience.


The common areas of Journal Campus House are impressive. They offer unlimited wifi and an on-site cafe for morning coffee. You can also use share bikes for a quick ride around Carlton. Plus, there are gym facilities to help you stay fit. The journal library and A+ study spaces are great for studying. The rooftop garden and outdoor courtyard provide excellent outdoor areas. Amenities like communal cooking, a games area, and a sky lounge enhance social life with relaxing views. Living at this student housing in Melbourne is convenient thanks to the onsite laundry, a prime location, and a building app. Rents for Journal Campus House cover various utilities, such as water and electricity, so you can enjoy a hassle-free stay. These student apartments in Melbourne are very safe as they have reception 24/7, a secure building, turnstiles, key fobs, and CCTV.

Location and What's Hot?

Campus House Melbourne, located in the heart of Carlton, puts you close to everything that makes student life in Melbourne exciting and easy. Just a short distance away from Melbourne Institute of Technology and Trinity College, this spot is perfect for students who want a quick commute to class. Start your day with a coffee at some of the best cafes in Melbourne, like Zouki Cafe or Humble Rays Carlton, both nearby and perfect for study breaks. Feeling hungry? Grab a fresh pizza at Piccolo Mondo or try tasty Turkish dishes at Nefes, both local favourites among students. Need a chill evening? Head over to The Last Chance or Prince Alfred Rooftop & Bar for casual drinks and a laid-back atmosphere. For a fun night out in Melbourne, dance at Key Club or enjoy music and drinks at Glamorama Nightclub.


Woolworths Melbourne Central and Queen Victoria Market are great spots for grocery shopping within walking distance. For healthcare, the Royal Melbourne Hospital is just around the corner, offering full medical services. Love sports? Catch a match at the Melbourne Cricket Ground (MCG) or Marvel Stadium, both just minutes away from this affordable student accommodation Melbourne. In your free time, explore Carlton Gardens, visit the Melbourne Museum, or catch a show at the Comedy Theatre nearby. With cafes, transport, parks, entertainment, and the best tourist attractions in Melbourne all around, Campus House Melbourne is a great choice for students who want a modern, central, and fun living experience in Melbourne. Whether you're heading to class, grabbing a bite, or exploring the city, everything is just minutes away.

Commute

Students at Campus House Melbourne will find it easy to get around the city. They have many public transport options right at their doorstep. Nearby bus stops to this accommodation near University of Melbourne are Melbourne University/Grattan St and Swanston St/Grattan St. Both stops are just a short walk away. Tram users can easily access stops at Lincoln Square/Swanston Street and Pelham St/Elizabeth St #9. This makes it simple to get to Journal Campus House for daily trips, outings, or study sessions.

Video Tours

Explore the property through a virtual walkthrough and discover a variety of in house amenities all at highly affordable rents.

1:14
1:24
1:25
1:11
1:12
1:13
1:30

Room Types (9)

Clear
All (9)
Non Ensuite (3)
Ensuite (2)
Studio (4)
Non Ensuite
A private room with a shared bathroom — Provides privacy at a more affordable price
9

Twin Studio

Starting From: AU$459/week
Non Ensuite
Shared Room
Shared Bathroom
Shared Kitchen
Ensuite
A private room with its own bathroom — Offers maximum privacy and comfort
5

Three-Bedroom Ensuite Apartment

Starting From: AU$539/week
Ensuite
Private Room
Private Bathroom
Shared Kitchen
Studio
All-in-one space with a bedroom, private bathroom, living area, and kitchenette — Ideal for complete independence
5

Standard Studio

Starting From: AU$559/week
Studio
Entire Place
Private Bathroom
Private Kitchen
Amenities
Common Amenities
Unlimited Wifi
Onsite Cafe
Share Bikes
Gym Facilities
Journal Library
A+ Study Spaces
Safety and Security
Reception 24/7
Secure Building
Turnstiles
Key Fob
CCTV
Bills Included
Electricity
Water

Payment Policies (5)

  • Booking Deposit
    This property requires booking deposit.
  • Security Deposit
    This property requires security deposit.
  • Pay In Instalment
    This property offers flexible instalment plan.
  • Mode Of Payment
    Payment via easy transaction modes.
  • Additional Fees
    Additional fees applicable.
Booking Deposit
<p>1. A <strong>one-week rent payment </strong>will be required as a deposit.</p> <p>2. Once your booking is completed and your room is secured, you may have up to seven days from the date you accept the booking terms and conditions to pay the <strong>two-week deposit</strong>.</p>
Security Deposit
<p>The bond is equivalent to <strong>4 weeks’ rent</strong>, and you need to pay the bond before your arrival.</p>
Pay In Instalment
<p>Rent can be paid fortnightly, in advance.&nbsp;</p>
Mode Of Payment
<p>Card Payment &amp; Bank Transfer.</p> <p><br></p> <p><strong>Please note: </strong>You will be required to pay credit card surcharge fee of 1.85% while processing the payment via credit card.</p>
Additional Fees
<p>You will be required to pay additional fee for laundry facilities.</p>

Cancellation Policies (3)

  • Cooling Off Period
    This property offers cooling-off period.
  • No Visa No Pay
    This property allows cancellation due to visa rejection.
  • No Place No Pay
    This property allows cancellation if admission is not secured.
Cooling Off Period
<p>If you have not entered into and/or commenced your tenancy agreement, you may cancel your booking without penalty <strong>within 48 hours</strong> of a booking. Any deposits or initial payments made will be refunded in full by the property.</p>
No Visa No Pay
<p><strong>For First-Year Student Only</strong></p> <p><br></p> <p><strong>No Visa</strong>: If your visa application is denied by the Department of Home Affairs (“DHA”) you may cancel your booking without penalty, provided that with a minimum of 7 days written notice prior to the commencement of your tenancy agreement you; submit your Refund Request Form to Journal within 72 hours of receiving the DHA refusal decision, and provide a copy of the DHA refusal document.</p>
No Place No Pay
<p><strong>For First-Year Student Only</strong></p> <p><br></p> <p><strong>No University Offer</strong>: If your university application is not accepted you may cancel your booking without penalty, provided that with a minimum of 7 days written notice prior to the commencement of your tenancy agreement you submit your Refund Request Form to Journal within 72 hours of receiving the university’s decision, and provide a copy of the non-acceptance letter.</p>
.

Frequently Asked Questions

Can I choose my room at Campus House Melbourne?

Yes, if it’s available, you can book the room you want at Campus House Melbourne.

Can I book a tour so I can look at the rooms at Campus House Melbourne?

Yes

What do I need to bring at Campus House Melbourne?

You need to bring your own linen, bedding and kitchen supplies. To make things easier at Campus House Melbourne.

How do I receive mail and packages at Campus House Melbourne?

Parcels will be delivered to reception, where the Campus House Melbourne team will securely look after them until you’re able to collect them.

How far is Melbourne’s Tullamarine Airport to Campus House Melbourne management?

It is around a 25-minute journey by car from Campus House Melbourne.

Do you offer airport pick up/drop off services?

Yes

Is there a café at Journal Campus House?

Yes, there are two cafes onsite offering warm food, sandwiches, pastries, Japanese sandos and hot and cold drinks.

Can I decorate my room?

Yes

Can I bring my own furniture?

While our rooms are fully furnished, you are welcome to bring small personal items to make your space more comfortable. However, large furniture items should be avoided to ensure compliance with safety regulations and to maintain the integrity of the provided furnishings.

Can I have guests stay over?

Yes, it’s your home so you can have guests staying over occasionally

What are the check-in and check-out procedures?

Upon check-in, you will need to present a valid photo ID, such as a passport or driver’s license. Their staff will guide you through the check-in process, including providing your room keys and any necessary information about the facility. During the check-out process, you are required to return all keys and ensure your room is left in good condition. Any damages or missing items may result in additional charges. It is important to check your email for any specific instructions related to check-in and check-out procedures.

Do you offer printing services?

Yes

Is it possible to share an apartment with someone of the same gender?

For Twin-Studios and Studio apartments, we follow a same-gender policy. For Large Two-Bed Apartments and Three and Four Bed Apartments while we cannot guarantee same-gender arrangements, we will do our best to accommodate your preference. We encourage you to let us know your preference when making the booking.

Can I swap my room once booked?

Room moves may be possible, subject to availability. We recommend mentioning any specific requests at the time of booking so we can better accommodate your needs. Please note that room changes may incur administrative and cleaning fees. For further details, please contact reception.

Can I send parcels to the building before moving in?

Yes, you can send parcels

Can I choose who I live with?

When you make a booking, please specify who you would like to stay with. For apartments, it depends on the room type, but they will do their best to organize for you to be with friends where possible.

Campus House, Melbourne
Lowest Price Guaranteed
We guarantee to match the price of your accommodation if you find an identical offer on another.
Learn More
Verified Properties
We guarantee that what you see on our website is exactly what you'll get.
24x7 Personal Assistance
For any doubts or queries, a quick call is all it takes - we're here to assist you promptly.
8.2K+ Reviews
We've earned an excellent rating from over 8,200+ students for our outstanding services.

Interested in the property?

Book your Live tour today!

Nearby Properties

Student Accommodations in Melbourne

Melbourne Student Accommodation

Melbourne, the cultural capital of Australia, is home to some of the country’s most renowned universities, such as La Trobe University, the University of Melbourne, RMIT University, Monash University, and the Melbourne Institute of Technology. The city attracts thousands of students annually, fostering a vibrant and inclusive academic community. With on-campus residences filling up quickly, students often explore student accommodations in Melbourne that offer comfort, flexibility, and proximity to campus. You’ll find everything from modern studios and en-suites to shared student apartments in Melbourne, each designed to suit different preferences and budgets, making your student life easy.


Life here extends well beyond the classroom, offering numerous social events that enhance the student experience. Melbourne blends urban sophistication with laid-back neighbourhood charm, making student living in Melbourne a well-balanced experience. The city’s efficient tram network connects popular suburbs like Carlton, Docklands, and North Melbourne, where you’ll find affordable rooms for rent in Melbourne near major universities. The area around the Melbourne Institute of Technology is especially popular for student housing Melbourne, offering convenient access to libraries, eateries, and public spaces. Students can also explore off-campus housing in Australia through verified platforms like amber, which makes it easier to compare and secure student accommodation in Australia before arrival. Known for its friendly and safe Melbourne Suburbs to Live in and easy transport, student housing in Australia truly shines here.

About Melbourne

Melbourne, the cultural capital of Australia, is home to some of the country’s most renowned universities, such as La Trobe University, the University of Melbourne, RMIT University, Monash University, and the Melbourne Institute of Technology. The city attracts thousands of students annually, fostering a vibrant and inclusive academic community. With on-campus residences filling up quickly, students often explore student accommodations in Melbourne that offer comfort, flexibility, and proximity to campus. You’ll find everything from modern studios and en-suites to shared student apartments in Melbourne, each designed to suit different preferences and budgets, making your student life easy. Life here extends well beyond the classroom, offering numerous social events that enhance the student experience. 


Melbourne blends urban sophistication with laid-back neighbourhood charm, making student living in Melbourne a well-balanced experience. The city’s efficient tram network connects popular suburbs like Carlton, Docklands, and North Melbourne, where you’ll find affordable rooms for rent in Melbourne near major universities. The area around the Melbourne Institute of Technology is especially popular for student housing Melbourne, offering convenient access to libraries, eateries, and public spaces. Students can also explore off-campus housing in Australia through verified platforms like amber, which makes it easier to compare and secure student accommodation in Australia before arrival. Known for its friendly and safe Melbourne Suburbs to Live in and easy transport, student housing in Australia truly shines here.

Best Student Accommodations In Melbourne

Finding the right student flats in Melbourne isn’t just about having a place to sleep; it’s about comfort, convenience, and creating a supportive environment for study and social life. Whether you’re attending the Melbourne Institute of Technology or another university, living close to campus with access to modern amenities like a cinema room, fitness centre, high-speed internet, weekly cleaning, wellbeing support, and more can make a huge difference. Amber offers a range of verified student housing in Melbourne, from private studios to shared flats, ensuring students can find a space that fits both their budget and lifestyle.


1. Scape Aurora – Rating: 4.9/5 – From AU$699/week – “Modern studios with private ensuites, rooftop terrace, and gym facilities close to universities and city hotspots.
2. Scape Victoria Street – Rating: 4.8/5 – From AU$649/week – “Affordable rooms with spacious study zones and social lounges, located near transport and city amenities.
3. Realm Caulfield – From AU$625/week
4. Iglu Melbourne Central Student Accommodation – Rating: 4.7/5 – From AU$625/week – “Furnished apartments with modern communal areas and a strong student community near the city centre.
5. Iglu South Yarra Student Accommodation – Rating: 5.0/5 – From AU$555/week – “Bright, furnished rooms with social spaces, surrounded by cafés and shops.

Affordable Student Accommodation Melbourne

For students seeking cheap student housing in Melbourne, the city provides a variety of student flats in Melbourne that combine affordability, comfort, and convenience. Whether you’re studying at the Melbourne Institute of Technology or other local universities, these options for student flats in Melbourne offer easy access to campus, public transport, and the city’s lively cultural and social scenes. From shared apartments to fully furnished studios, there are plenty of choices for those looking for a home that doesn’t compromise on quality.


1. Unilodge Victoria University  – From AU$209/week. Modern studios and shared apartments with study zones, communal kitchens, and social areas designed for student life.
2. Carric Hostel – From AU$250/week. Affordable shared rooms in a friendly, community-oriented environment, ideal for students seeking budget-friendly student living Melbourne near campus.
3. Campus Melbourne – From AU$266/week. Contemporary student residences Melbourne feature furnished rooms, study lounges, and lively common spaces to foster connections and make new friends.
4. Carric House – From AU$280/week. Comfortable shared rooms and studios with essential amenities, located close to public transport and modern facilities.
5. Walsh Residence Melbourne – From AU$285/week. Fully equipped options for student accommodation in Melbourne city with study areas and convenient access to cafes and shops, making it ideal for student living in Melbourne.

Best Areas to Live In Melbourne

Melbourne offers a variety of neighbourhoods ideal for students, each with unique features such as proximity to top Melbourne universities, affordability, and a lively student community. If you are looking for student housing in Melbourne, these areas provide convenience and lifestyle for students.


1. Carlton: Carlton is popular among students due to its proximity to the University of Melbourne and RMIT University. The area offers a mix of cafes, parks, and transport links. Commute from your shared student housing in Melbourne to campus is 5–10 minutes on foot or by tram, with average weekly rent around AUD 450–650.
2. Parkville: Parkville, adjacent to Carlton, is home to the University of Melbourne’s main campus. It features shops, cafes, and green spaces like Royal Park. Students can reach campus in 5–10 minutes by tram or bike, with weekly rents averaging AUD 450–600.
3. North Melbourne: North Melbourne offers a quieter, more residential environment with shared houses. It is well-connected to central Melbourne and the universities via tram and bus. Average rent is AUD 400–550 per week, and the commute takes around 10–15 minutes.
4. South Yarra: South Yarra is a commercial and cultural hub with shopping centres, restaurants, and nightlife. Although slightly further from campuses, public transport makes commuting 15–20 minutes. Weekly rents for student rentals Melbourne in this area range from AUD 500 to 700.
5. Fitzroy: Known for its artsy, lively atmosphere, Fitzroy is ideal for students who enjoy culture and nightlife. The suburb has a mix of student lodge Melbourne and shared student housing, with the campus reachable in 10–15 minutes by tram. Average rent is AUD 450–600 per week.

Room Types Available In Melbourne

Student accommodation Melbourne offers a diverse range of options to suit various preferences and budgets, ensuring every student can find a space that aligns with their lifestyle. Here's an overview of the room types available in affordable student accommodation Melbourne:


1. Studios: Studio apartments in Melbourne are ideal for students seeking complete independence. These units include a private bedroom, bathroom, and kitchen, offering maximum privacy and convenience. They are perfect for those looking for self-contained living spaces.
2. 1-Bed or 2-Bed Apartments: These options for cheap student housing Melbourne provide one or two private bedrooms along with shared living areas such as kitchens and lounges. They offer a balance between private space and social interaction, making them suitable for friends or small groups.
3. Shared Apartments: Shared apartments consist of multiple private bedrooms within a single unit, with communal kitchens, bathrooms, and living areas. This setup of student housing in Melbourne encourages social interaction and community living while still offering personal space for each resident.
4. Private Rooms: Private rooms offer students a personal bedroom with essentials like a study desk and bed, with access to shared facilities such as kitchens and lounges. These rooms suit students who want independence without complete isolation.

Cost of Living In Melbourne

Understanding the cost of living in Melbourne is essential for students budgeting their stay. Melbourne offers a relatively affordable lifestyle compared to other major Australian cities, with various off-campus housing options to suit different budgets. On average, students should plan for monthly expenses ranging from AUD 1,500 to 2,500, covering rent, food, transportation, and leisure activities. Determine your budget by considering both base rent and additional costs like utilities or bonds. This guide outlines typical costs to help students manage their finances effectively during their time in Melbourne student accommodation.

1. Accommodation: AU$200 – AU$600/week
2. Groceries: AU$200 – AU$400/month
3. Transportation: AU$150 – AU$250/month
4. Utilities (Gas, Electricity, Water): AU$50 – AU$100/month
5. Internet: AU$30 – AU$60/month
6. Leisure & Social Activities: AU$100 – AU$200/month

Student Travel In Melbourne

Melbourne is a student-friendly city with a comprehensive and efficient transport network, making commuting easy and affordable. Whether you’re heading to the Melbourne Institute of Technology, exploring local cafés and cultural hotspots, or running errands near your student apartments in Melbourne, the city offers multiple travel options suited for students.


1. Trams: Melbourne’s iconic tram network covers most of the CBD and nearby suburbs. The Free Tram Zone allows travel within the central business district without charge. It is free within the zone; beyond, fares start at approximately £3.00 using a Myki card. The Free Tram Zone is perfect for students living in accommodation in Melbourne for international students close to campus or in central areas.
2. Trains: Melbourne’s metropolitan train network links suburbs to the CBD and universities like MIT. And single fares start at £3–£4. Concession fares are available for students with a valid ID using a Myki card.
3. Buses: Bus services operate in areas not covered by trams or trains, making them ideal for students living in outer suburbs. Weekly passes start at approximately £15/week. Also, check timetables via the PTV app to ensure timely travel.
4. Cycling: Melbourne is bike-friendly with dedicated lanes and paths throughout the city. Free, aside from purchasing a bicycle.
5. Walking: For students residing near MIT or in central areas, walking is practical and eco-friendly.
6. Cabs and Ride-Sharing: Services like Uber and DiDi are widely available across Melbourne, offering reliable options for late-night commutes or when public transport isn’t running. Students can also use local taxis via the 13CABS or Silver Top Taxi apps for convenient point-to-point travel.

Student Transit Tips: Full-time students can benefit from concession Myki cards or the International Student Travel Pass for discounted fares. Combining trains, buses, cycling, and walking ensures efficient, cost-effective travel for students living in Melbourne or rooms for rent in Melbourne.

Student Lifestyle and Tourist Attractions in Melbourne

Melbourne, known as Australia’s cultural capital, offers a lively and student-friendly environment where academics and social life thrive. Safe and popular neighbourhoods like Carlton, Fitzroy, and Southbank are close to Melbourne Institute of Technology and provide easy access to essential amenities and a multicultural atmosphere. Students can find a variety of student apartments Melbourne to suit different needs. Students often hang out at Pearson & Murphy's Café for speciality coffee, Industry Beans Fitzroy for the best cafes in Melbourne experience, or Higher Ground for a spacious and unique study environment. 


For nightlife, Revolver Upstairs is a hotspot for electronic music, The Night Cat offers live music in a relaxed atmosphere, providing a night out in Melbourne to remember, and also Cherry Bar delivers a classic rock vibe. Green spaces like Royal Park, Carlton Gardens, and Fitzroy Gardens provide tranquil settings for outdoor study or relaxing breaks. Melbourne also offers excellent learning resources. State Library Victoria provides extensive study spaces and resources, while The Wheeler Centre hosts literary events. The Baillieu Library at the University of Melbourne supports student research and learning. For healthcare, students can access The Royal Melbourne Hospital, St Vincent’s Hospital Melbourne, and Melbourne Private Hospital are also conveniently located.

Top Universities in Melbourne

Melbourne is home to several prestigious universities, attracting students from across Australia and internationally. The city offers excellent academic programmes and convenient, purpose-built student accommodations (PBSA) that include fully furnished rooms with all bills included and access to amenities. Here are the top universities in Melbourne for students:


1. Melbourne Institute of Technology (MIT): MIT offers industry-relevant programs in Business, Accounting, Information Technology, and Engineering. Some of the best accommodation near Melbourne Institute of Technology includes Scape Melbourne Central, UniLodge Melbourne Central, and Student Living on A’Beckett, providing fully furnished rooms, study areas, communal kitchens, and modern amenities.
2. RMIT University (Brunswick Campus): RMIT is a global university of technology, design, and enterprise, offering programs in engineering, arts, business, and social sciences. Popular student flats in Melbourne near RMIT include Carric Hostel and Yugo University Square, featuring furnished rooms, communal study spaces, and easy access to the city.
3. University of Melbourne: One of Australia’s leading universities, it offers diverse undergraduate and postgraduate programs. Nearby off-campus housing in Australia includes Iglu Melbourne City and Yugo University Square, offering furnished short-term student accommodation Melbourne, study lounges, gyms, and modern communal facilities for students.

.

Nearby Places

.
amber © 2025. All rights reserved.
Get the app
Payment Options
Contact us
Follow us on