Search by
Amber Exclusive
4.8(4)
+75

Scape Victoria Street, Melbourne

23-29, Victoria St, Melbourne, 3000, Australia
From
AU$649
per week
0.7 mi from City Center
( 6m. 13m. 15m)
See Universities on Map
398 Total Units
Highest Floor 24
Built in 2024
Hawthorn-Melbourne | 0.1 mi
RMIT University City Campus | 0.19 mi
Southern Cross University | 0.22 mi
Institute of Tertiary and Highe... | 0.22 mi
Australian College of Applied P... | 0.25 mi
Pay In Instalment
No Visa No Pay
Social Lounge
Events program
bills included

Offers (7)

  • Amber Student Fest Exclusive: Snap AU$520 on Full-Year Bookings!
  • Save Up to AU$800+ When You Bundle Your Student Essentials!
  • AU$90 Loyalty Bonus – Rebook Your Stay with Amber!
  • Enjoy Up to AU$90 Cashback When You Book with Friends on Amber!
  • Double the Reward: Get AU$50 Each for Referring a Friend on Amber!
  • Get An Additional AU$20 Cashback By Booking Via The Amber App
  • Save Up to AUD400+ When You Bundle Your Student Essentials!

About the Property

Scape Victoria Street student accommodation is in Melbourne. It is located at 23-29 Victoria St, Melbourne, 3000, Australia. It offers premium en-suites with premium services. This student accommodation in Melbourne is near top universities. For example,  Hawthorn-Melbourne and the Royal Melbourne Institute of Technology are both within a 5-minute walking distance.


You will be living in the prime location of Melbourne CBD. It has a lovely green neighbourhood, tall business buildings, and residential apartments. 402,431 students are pursuing their education in the top universities of Melbourne. Most of the residential population consists of young professionals. They will be a good influence on your professional life. This provides you with opportunities to connect and network with them. Also, there is a mixed crowd of Chinese, Indian, Australian, Vietnamese, and Nepalese people. Restaurants, eateries, cafes, and a variety of social spots are easily accessible to you.


Melbourne CBD accommodation is the most sought-after among students. It lies in the heart of Melbourne. This city is home to the first feature film in the world. A true worker’s paradise with 55% of Melbourne’s business. It also hosts year-round events of sports and cultural festivals. It is every coffee lover's safe haven, with the highest number of cafes. Melbourne ranks 56.2% in the world security index. Residents report feeling safe during the day when alone. Plus, the city is surrounded by the Dandenong Ranges, Yarra Valley, and the Great Ocean Road. You can enjoy all of this by choosing Scape Victoria Street in Melbourne.

Features

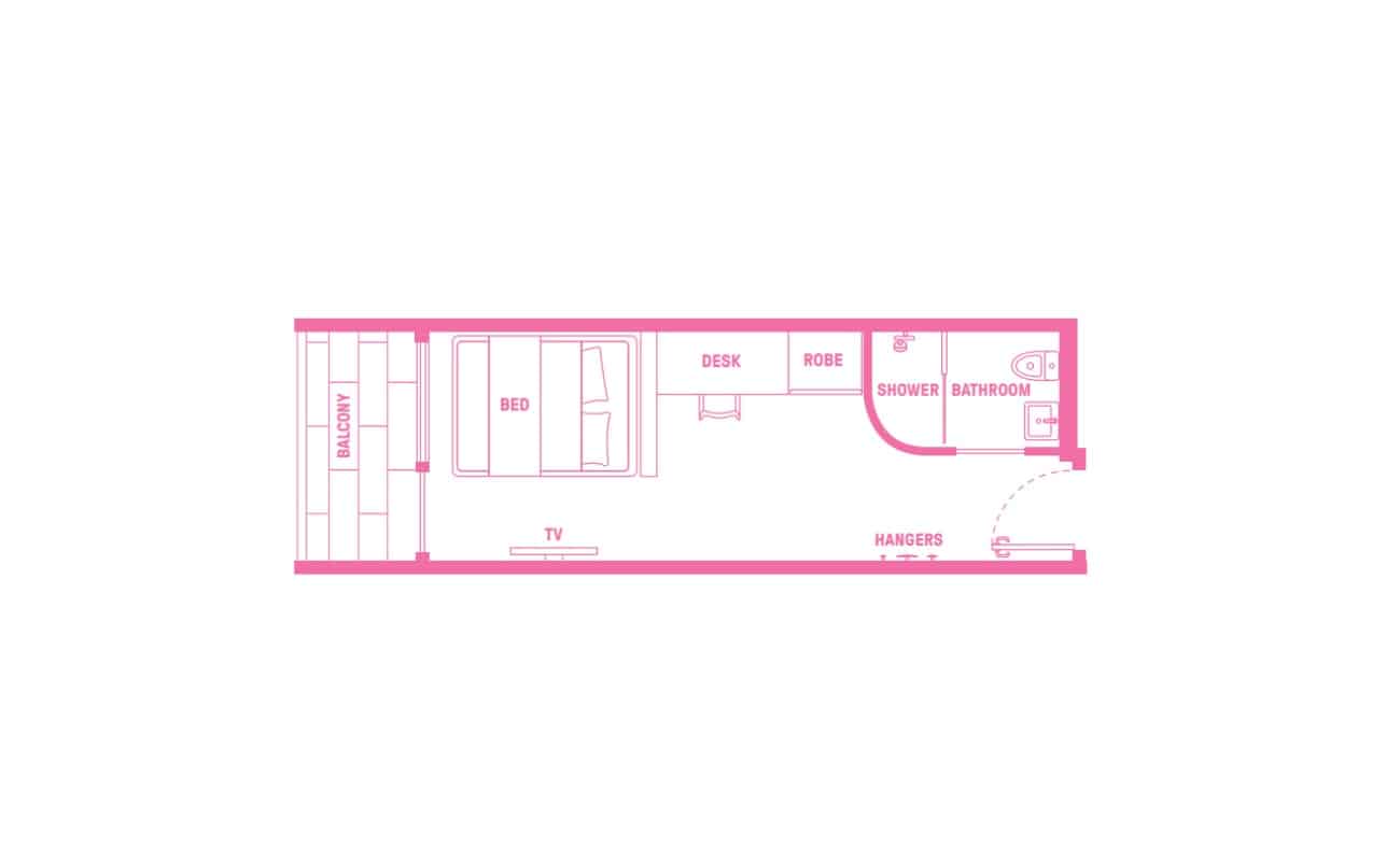
Scape Victoria Street reviews are full of praise for its food, utilities, and customer service. Scape Victoria Street provides modern en-suites, from Double Ensuite to Medium Double Ensuite, for comfortable living. You get exclusive privacy at an affordable price. They consist of large windows for great lighting and beautiful views. A double bed to take care of your sleep. You can neatly store your belongings in the wardrobe given. A study area for a dedicated learning session. Having a separate space will immensely boost your productivity. Air conditioning is a much-needed appliance to ward off the heat and maintain the temperature. You can store perishable food easily in the mini fridge. You can have your fair share of entertainment. You also get a flat-screen TV and unlimited Wi-Fi. Also, each apartment has its own set of amenities. So choose one that suits your taste.


Scape Victoria Street also has some amazing common amenities for you. Everyone can use them regardless of their room type. You get a resident lounge and rooftop terrace for stimulating conversations and relaxing. They also have all-inclusive food for students. This is a relief to your pockets. You don't have to worry about cooking either. The events and programmes are the real stars. Much anticipated and enjoyed by the students. It also fosters a sense of community and belonging. It is a safe place for you with 24/7 security. You also get access to the Sonder safety app. Your bills will have electricity, water, wifi, and heating, along with rent. Thus, Scape Victoria Street is a complete package. Plus, a great choice of student apartments in Melbourne.

Location and What's Hot?

Southern Cross University is a 7-minute walk from the property. The Institute of Tertiary and Higher Education Australia is nearly a 5-minute walk away from Scape Victoria Street. The convenience stores are just around the corner. You can make quick runs for essentials at Exhibition Street IGA, X-Press, and Lambs on Lygon St. In times of an emergency, having a pharmacy close by matters a lot. HealthSmart Pharmacy VCCC and Terry White Chemmart Melbourne Central are one-stop solutions for medicines.


There are a variety of places to explore around Scape Victoria Street. Don Tojo and Joomak are perfect for a lovely meal on a pleasant evening. They offer delicious meals at affordable prices. Coffee on Drummond and Her Cafe are bustling with students. They offer a much-needed cup of coffee and quick bites with tasty brunch options. Social spots like The Oxford Scholar and The Coopers Inn have colorful cocktails and soulful music flowing around.


Spending a day at the Royal Exhibition Building will never make you regret it. Visitors praise its stunning architecture. It is surrounded by the beautiful green Carlton Gardens. It is also a historically significant place and holds a lot of events. The Fitzroy Gardens are a peaceful retreat. It also has famous photographs like the Temple of the Winds and the Fairy Tree. It also has the Cook’s Cottage along its paths. It takes you back in time to the old UK and its culture. The night fills Chinatown with life. It buzzes with explorers, tourists, citizens, and vendors. Along with great food, you will find amazing Chinese cultural festivals celebrated here.

Commute

From buses and trains to trams, you will easily find transport at Scape Victoria Street. The public transport is not just cheap, but it is also convenient. Plus, it offers great views along the way. So, hop on a bus at Trades Hall/Lygon St and Victoria St./Rathdowne St. If not, then board a train from Melbourne Central and Parliament. Else, grab a tram from Melbourne Central Station/Swanston St or 7-Russell St./Bourke St.

Video Tours

Explore the property through a virtual walkthrough and discover a variety of in house amenities all at highly affordable rents.

0:20
1:35
0:18

Room Types (7)

Clear
All (7)
Ensuite (7)
Ensuite
A private room with its own bathroom — Offers maximum privacy and comfort
6

Signature Double Ensuite

Starting From: AU$649/week
Ensuite
Private Room
Private Bathroom
Shared Kitchen
6

Signature Double Ensuite with Views

Starting From: AU$659/week
Ensuite
Private Room
Private Bathroom
Shared Kitchen
6

Signature Double Ensuite with Balcony

Starting From: AU$699/week
Ensuite
Private Room
Private Bathroom
Shared Kitchen
5

Signature Plus Double Ensuite with Views and Balcony

Starting From: AU$779/week
Ensuite
Private Room
Private Bathroom
Shared Kitchen
7

Ultra Double Ensuite

Starting From: AU$849/week
Ensuite
Private Room
Private Bathroom
Shared Kitchen
4

Ultra Double Ensuite With Lounge

Starting From: AU$899/week
Ensuite
Private Room
Private Bathroom
Shared Kitchen
10

Signature Plus Double Ensuite

Starting From: AU$739/week
Ensuite
Private Room
Private Bathroom
Shared Kitchen
Amenities
Common Amenities
Events Program
All-inclusive food offering
Rooftop Terrace
Laundry
Resident Lounge
Outdoor Living
Safety and Security
24/7 Security
Sonder Safety App
Bills Included
Electricity
Water
Wifi
Heating

Payment Policies (5)

  • Booking Deposit
    This property requires booking deposit.
  • Security Deposit
    This property requires security deposit.
  • Pay In Instalment
    This property offers flexible instalment plan.
  • Mode Of Payment
    Payment via easy transaction modes.
  • Guarantor Requirement
    Guarantor requirements and policy.
Booking Deposit
<p>You need to pay a holding deposit of <strong>1 week's rent</strong> to secure your room with the property.</p> <p><strong>Note:</strong> You will be required to sign a residential tenancy agreement within 14 days of paying the holding deposit.</p>
Security Deposit
<p>1. A bond equivalent to<strong> 4 week's rent </strong>needs to be paid prior to moving in.</p> <p>2. This is refundable at the end of the tenancy period, less any deductions and pending charges.</p>
Pay In Instalment
<p>The property accepts:</p> <p>1. Payment in full.</p> <p>2. Fortnightly payments.</p>
Mode Of Payment
<p>Credit card, Debit card and Bank transfer.</p>
Guarantor Requirement
<p>The property does not require you to provide any guarantors.</p>

Cancellation Policies (3)

  • Cooling Off Period
    This property offers cooling-off period.
  • No Visa No Pay
    This property allows cancellation due to visa rejection.
  • No Place No Pay
    This property allows cancellation if admission is not secured.
Cooling Off Period
<p>1. The property provides a 48-hour cooling-off period.<br> 2. This applies if the cancellation is due to a change of mind.</p>
No Visa No Pay
<p>1. If you wish to cancel the contract within the same or following month (not the next semester) due to visa delays, the booking can be canceled and funds will be returned.<br> 2. This is applicable up to 3 days before the contract start date.</p>
No Place No Pay
<p>1. If you wish to cancel the contract within the same or following month (not the next semester) due to deferral, the booking can be canceled and funds will be returned.<br> 2. This is applicable up to 3 days prior to the contract start date.</p>
.

Frequently Asked Questions

What’s included at this property?

All your utilities including electricity, water and heating, plus unlimited broadband internet is included with your rent. There are no additional bills to worry about. You’ll also enjoy access to our common property plus a packed calendar bursting with exclusive events, mentorship programs, and internship opportunities where you can experience other cultures and make friends at the same time.

Do I need to be a student to live at this property?

Yes, property is purpose built for students and a confirmation of enrolment is required to secure your room. Looking for accommodation but not a student? Property are available at two locations in the heart of Melbourne that offer luxe apartment living with flexible leases, amazing spaces, services on-demand all wrapped in one simple cost. Book a tour to check it out today.

Can I take a look around?

We would love you to, however property is currently under construction and due to open early 2024 (ready for Semester 1 accommodation). Stay tuned for when tours may become available. In the meantime, we offer both in-person and virtual tours of all our other Management properties in Melbourne. 

How close is property Street to university?

Property is conveniently located to a range of universities and campuses in Melbourne and easily accessible by public transport so you can easily get to class without having to worry about traffic or parking. RMIT University is just a 2-minute walk away down property. University of Melbourne is a 15-minute walk away, or you can catch the tram which takes approximately 10 minutes. Monash University Parkville Campus is a 20-minute tram ride away. Victoria University is within walking distance and can be reached in 15 minutes You can take the bus to La Trobe University City Campus in about 10 minutes or via a 20-minute walk.

Where’s the nearest public transport to property?

Property is a good place to live if you want to be close public transport in Melbourne. There are a few tram stops nearby just a 3-minute walk away. Trams run frequently to all parts of the city, making it easy to get to class, work, or explore the city. If you’re taking the tram, you can get to most parts of the city in under 30 minutes. Just a 7-minute walk away is Melbourne Central train station, located underneath the Melbourne Central shopping centre. This train line will take you to all the major stations in the CBD, as well as to other parts of Melbourne, such as South Yarra and Footscray. Flinders Street Station is also a 19-minute walk or 10-minute tram ride away and is a major transportation hub, with trains running to all parts of Melbourne and beyond. If you’re looking for a more affordable option, the closest bus stop within walking distance of property is 2 minutes away. Buses will take you to a variety of destinations around Melbourne, including the Royal Botanic Gardens, the Melbourne Museum, and the Queen Victoria Market.

What shops are close to property?

If you’re looking for a big-name store or a local gem, you’re sure to find it all within a short walk or tram ride of property. A one-stop shop for all your shopping, dining, and entertainment needs, Melbourne Central is a 7-minute walk away and is home to over 300 stores. It also has several restaurants, cafes, and bars, as well as a cinema complex. QV is an upscale shopping centre is only a 6-minute walk from property and has over 120 stores, including fashion, homewares, and specialty boutiques.

How often do I pay my rent?

The easiest way to pay your rent is through our fortnightly direct debit system. We also have full upfront payment options. If you wish to pay the full rent amount in one lump sum, you can do this with a credit or debit card at Reception or by bank transfer. International transfers or credit card payments may result in a surcharge from your bank.

What is a Bond? And how do I pay it?

The bond is a security deposit registered with the appropriate state-based authority and covers any damage you may cause to the room. Don’t worry, this excludes normal wear and tear. You will receive an email 10 days before your contract start date asking you to pay a security deposit through the Resident Portal. It is refundable at the end of your stay with us if there are no damages, your room is left clean and there is no outstanding rent. You will receive an email when your bond is ready to be returned. Release of your bond from the state-based authority will either be transferred into an Australian bank account of your choice which is the preferred method, or you can arrange for a cheque to be sent to you.

When do I sign my contract?

Would you like an express check-in? If you complete your pre-arrival process before arrival your check-in will only take 10 minutes. If you haven’t completed your pre-arrival process, your check-in could take up to 30 minutes.

What do I need to do to complete an express check in?

Your contract will be available 8 weeks prior to your contract start date via our Resident Portal. Once logged in to the portal, you will be able to review and sign your contract prior to arriving at Management. Make sure to give yourself enough time to read the contract carefully before signing. Once completed, we’ll send you a copy of the final signed contract via email for your records. You’ll also need to upload your Confirmation of Enrolment and Photo ID, plus complete your emergency contact and rent payment information.

Do I need to bring my own bedspread, quilt and pillow?

Yes. However, to make life easier, these items may be purchased on our website when booking your room, or via our Resident Portal, and can be ready for you on check-in. They can also be purchased from Reception, subject to availability. Get settled early and purchase your bedding pack to guarantee availability.

How do I buy linen and kitchen supplies in advance?

You can log in to our Resident Portal to buy kitchen and bedding before arriving at Management. Alternatively, you can email the property directly.

Does property have an airport transfer service?

Yes! To arrange a pick-up service from the airport directly to property, please visit our Airport Transfer page and complete the form at least 72 hours before your scheduled arrival at the airport. Contact your Management location for pricing. Alternatively, all major Australian airports have taxi ranks and dedicated pick-up areas for ridesharing services including Didi and Uber that will take you to any of our buildings.

What time is check-in at property?

Property will welcome you at any time of day or night.  To assist with a smooth arrival, we ask residents who plan to arrive outside normal business hours (9.00 to 18.00) to inform us by email at least 72 hours in advance. This way we can make sure a Management team member is available to greet you. If you arrive outside of normal business hours, you’ll find contact information at the entrance of the building. Your calls will be answered by a friendly team member who will help you check-in.

What goes on in the communal spaces?

Property features a range of communal spaces available to all residents where you can rest and relax or socialise with friends. These include the Management Eats onsite eatery and open pantry, music room, massive communal kitchen, rooftop garden, private cinema and 24/7 gym. We’ll host resident events in these  Management from time to time, but they can also be booked in advance if you’d like them all to yourself! property is also home to eight residential Neighbourhoods, each with their own lounge areas, study zones, hang-out spaces and more. Our eight Neighbourhoods have been designed by students, for students, and we think you’ll love them!

Can friends visit?

Of course! This is your home. If you would like to have a guest stay overnight, that is fine too, but you’ll need to be over 18. Unfortunately, overnight guests aren’t permitted in twin or Under18 rooms. There are also a few rules around guests in the property which staff would be happy to brief you on. You will need to register your guest at Reception, so they know who is in the building for security reasons.
Scape Victoria Street, Melbourne

Unlock up to AU$520 OFF your full-year 2026-2027 stay with the Amber Student Housing Fest!

Instant Booking
Instant booking allows you to quickly book the property by paying the amount
Lowest Price Guaranteed
We guarantee to match the price of your accommodation if you find an identical offer on another.
Learn More
Verified Properties
We guarantee that what you see on our website is exactly what you'll get.
24x7 Personal Assistance
For any doubts or queries, a quick call is all it takes - we're here to assist you promptly.
8.2K+ Reviews
We've earned an excellent rating from over 8,200+ students for our outstanding services.

Interested in the property?

Book your Live tour today!

4 Reviews
4.8

MH
Mohini H
5.0
I'm so happy I chose to stay here while I was studying in Melbourne, it was a pleasure to meet so many lovely people here who are now some of my closest friends. I would highly recommend this place as the amenities and the locality is everything you need and more!
Read more
JD
Janice D
5.0
The best part about staying here is that the breakfast is included! It's a lovely accommodation and all the staff here are so welcoming and kind. I had a great experience staying in Melbourne, thanks to Scape Victoria!!
Read more
JD
Janice D
5.0
The best part about staying here is that the breakfast is included! It's a lovely accommodation and all the staff here are so welcoming and kind. I had a great experience staying in Melbourne, thanks to Scape Victoria!!
Read more
JU
Jackson U
4.0
The food and amenities here were top-notch. I have made some amazing memories at Scape thanks to the welcoming staff and like-minded students I met here. It was a 10/10 experience for me!!
Read more

Nearby Properties

Student Accommodations in Melbourne

Melbourne Student Accommodation

Melbourne, the cultural capital of Australia, is home to some of the country’s most renowned universities, such as La Trobe University, the University of Melbourne, RMIT University, Monash University, and the Melbourne Institute of Technology. The city attracts thousands of students annually, fostering a vibrant and inclusive academic community. With on-campus residences filling up quickly, students often explore student accommodations in Melbourne that offer comfort, flexibility, and proximity to campus. You’ll find everything from modern studios and en-suites to shared student apartments in Melbourne, each designed to suit different preferences and budgets, making your student life easy.


Life here extends well beyond the classroom, offering numerous social events that enhance the student experience. Melbourne blends urban sophistication with laid-back neighbourhood charm, making student living in Melbourne a well-balanced experience. The city’s efficient tram network connects popular suburbs like Carlton, Docklands, and North Melbourne, where you’ll find affordable rooms for rent in Melbourne near major universities. The area around the Melbourne Institute of Technology is especially popular for student housing Melbourne, offering convenient access to libraries, eateries, and public spaces. Students can also explore off-campus housing in Australia through verified platforms like amber, which makes it easier to compare and secure student accommodation in Australia before arrival. Known for its friendly and safe Melbourne Suburbs to Live in and easy transport, student housing in Australia truly shines here.

About Melbourne

Melbourne, the cultural capital of Australia, is home to some of the country’s most renowned universities, such as La Trobe University, the University of Melbourne, RMIT University, Monash University, and the Melbourne Institute of Technology. The city attracts thousands of students annually, fostering a vibrant and inclusive academic community. With on-campus residences filling up quickly, students often explore student accommodations in Melbourne that offer comfort, flexibility, and proximity to campus. You’ll find everything from modern studios and en-suites to shared student apartments in Melbourne, each designed to suit different preferences and budgets, making your student life easy. Life here extends well beyond the classroom, offering numerous social events that enhance the student experience. 


Melbourne blends urban sophistication with laid-back neighbourhood charm, making student living in Melbourne a well-balanced experience. The city’s efficient tram network connects popular suburbs like Carlton, Docklands, and North Melbourne, where you’ll find affordable rooms for rent in Melbourne near major universities. The area around the Melbourne Institute of Technology is especially popular for student housing Melbourne, offering convenient access to libraries, eateries, and public spaces. Students can also explore off-campus housing in Australia through verified platforms like amber, which makes it easier to compare and secure student accommodation in Australia before arrival. Known for its friendly and safe Melbourne Suburbs to Live in and easy transport, student housing in Australia truly shines here.

Best Student Accommodations In Melbourne

Finding the right student flats in Melbourne isn’t just about having a place to sleep; it’s about comfort, convenience, and creating a supportive environment for study and social life. Whether you’re attending the Melbourne Institute of Technology or another university, living close to campus with access to modern amenities like a cinema room, fitness centre, high-speed internet, weekly cleaning, wellbeing support, and more can make a huge difference. Amber offers a range of verified student housing in Melbourne, from private studios to shared flats, ensuring students can find a space that fits both their budget and lifestyle.


1. Scape Aurora – Rating: 4.9/5 – From AU$699/week – “Modern studios with private ensuites, rooftop terrace, and gym facilities close to universities and city hotspots.
2. Scape Victoria Street – Rating: 4.8/5 – From AU$649/week – “Affordable rooms with spacious study zones and social lounges, located near transport and city amenities.
3. Realm Caulfield – From AU$625/week
4. Iglu Melbourne Central Student Accommodation – Rating: 4.7/5 – From AU$625/week – “Furnished apartments with modern communal areas and a strong student community near the city centre.
5. Iglu South Yarra Student Accommodation – Rating: 5.0/5 – From AU$555/week – “Bright, furnished rooms with social spaces, surrounded by cafés and shops.

Affordable Student Accommodation Melbourne

For students seeking cheap student housing in Melbourne, the city provides a variety of student flats in Melbourne that combine affordability, comfort, and convenience. Whether you’re studying at the Melbourne Institute of Technology or other local universities, these options for student flats in Melbourne offer easy access to campus, public transport, and the city’s lively cultural and social scenes. From shared apartments to fully furnished studios, there are plenty of choices for those looking for a home that doesn’t compromise on quality.


1. Unilodge Victoria University  – From AU$209/week. Modern studios and shared apartments with study zones, communal kitchens, and social areas designed for student life.
2. Carric Hostel – From AU$250/week. Affordable shared rooms in a friendly, community-oriented environment, ideal for students seeking budget-friendly student living Melbourne near campus.
3. Campus Melbourne – From AU$266/week. Contemporary student residences Melbourne feature furnished rooms, study lounges, and lively common spaces to foster connections and make new friends.
4. Carric House – From AU$280/week. Comfortable shared rooms and studios with essential amenities, located close to public transport and modern facilities.
5. Walsh Residence Melbourne – From AU$285/week. Fully equipped options for student accommodation in Melbourne city with study areas and convenient access to cafes and shops, making it ideal for student living in Melbourne.

Best Areas to Live In Melbourne

Melbourne offers a variety of neighbourhoods ideal for students, each with unique features such as proximity to top Melbourne universities, affordability, and a lively student community. If you are looking for student housing in Melbourne, these areas provide convenience and lifestyle for students.


1. Carlton: Carlton is popular among students due to its proximity to the University of Melbourne and RMIT University. The area offers a mix of cafes, parks, and transport links. Commute from your shared student housing in Melbourne to campus is 5–10 minutes on foot or by tram, with average weekly rent around AUD 450–650.
2. Parkville: Parkville, adjacent to Carlton, is home to the University of Melbourne’s main campus. It features shops, cafes, and green spaces like Royal Park. Students can reach campus in 5–10 minutes by tram or bike, with weekly rents averaging AUD 450–600.
3. North Melbourne: North Melbourne offers a quieter, more residential environment with shared houses. It is well-connected to central Melbourne and the universities via tram and bus. Average rent is AUD 400–550 per week, and the commute takes around 10–15 minutes.
4. South Yarra: South Yarra is a commercial and cultural hub with shopping centres, restaurants, and nightlife. Although slightly further from campuses, public transport makes commuting 15–20 minutes. Weekly rents for student rentals Melbourne in this area range from AUD 500 to 700.
5. Fitzroy: Known for its artsy, lively atmosphere, Fitzroy is ideal for students who enjoy culture and nightlife. The suburb has a mix of student lodge Melbourne and shared student housing, with the campus reachable in 10–15 minutes by tram. Average rent is AUD 450–600 per week.

Room Types Available In Melbourne

Student accommodation Melbourne offers a diverse range of options to suit various preferences and budgets, ensuring every student can find a space that aligns with their lifestyle. Here's an overview of the room types available in affordable student accommodation Melbourne:


1. Studios: Studio apartments in Melbourne are ideal for students seeking complete independence. These units include a private bedroom, bathroom, and kitchen, offering maximum privacy and convenience. They are perfect for those looking for self-contained living spaces.
2. 1-Bed or 2-Bed Apartments: These options for cheap student housing Melbourne provide one or two private bedrooms along with shared living areas such as kitchens and lounges. They offer a balance between private space and social interaction, making them suitable for friends or small groups.
3. Shared Apartments: Shared apartments consist of multiple private bedrooms within a single unit, with communal kitchens, bathrooms, and living areas. This setup of student housing in Melbourne encourages social interaction and community living while still offering personal space for each resident.
4. Private Rooms: Private rooms offer students a personal bedroom with essentials like a study desk and bed, with access to shared facilities such as kitchens and lounges. These rooms suit students who want independence without complete isolation.

Cost of Living In Melbourne

Understanding the cost of living in Melbourne is essential for students budgeting their stay. Melbourne offers a relatively affordable lifestyle compared to other major Australian cities, with various off-campus housing options to suit different budgets. On average, students should plan for monthly expenses ranging from AUD 1,500 to 2,500, covering rent, food, transportation, and leisure activities. Determine your budget by considering both base rent and additional costs like utilities or bonds. This guide outlines typical costs to help students manage their finances effectively during their time in Melbourne student accommodation.

1. Accommodation: AU$200 – AU$600/week
2. Groceries: AU$200 – AU$400/month
3. Transportation: AU$150 – AU$250/month
4. Utilities (Gas, Electricity, Water): AU$50 – AU$100/month
5. Internet: AU$30 – AU$60/month
6. Leisure & Social Activities: AU$100 – AU$200/month

Student Travel In Melbourne

Melbourne is a student-friendly city with a comprehensive and efficient transport network, making commuting easy and affordable. Whether you’re heading to the Melbourne Institute of Technology, exploring local cafés and cultural hotspots, or running errands near your student apartments in Melbourne, the city offers multiple travel options suited for students.


1. Trams: Melbourne’s iconic tram network covers most of the CBD and nearby suburbs. The Free Tram Zone allows travel within the central business district without charge. It is free within the zone; beyond, fares start at approximately £3.00 using a Myki card. The Free Tram Zone is perfect for students living in accommodation in Melbourne for international students close to campus or in central areas.
2. Trains: Melbourne’s metropolitan train network links suburbs to the CBD and universities like MIT. And single fares start at £3–£4. Concession fares are available for students with a valid ID using a Myki card.
3. Buses: Bus services operate in areas not covered by trams or trains, making them ideal for students living in outer suburbs. Weekly passes start at approximately £15/week. Also, check timetables via the PTV app to ensure timely travel.
4. Cycling: Melbourne is bike-friendly with dedicated lanes and paths throughout the city. Free, aside from purchasing a bicycle.
5. Walking: For students residing near MIT or in central areas, walking is practical and eco-friendly.
6. Cabs and Ride-Sharing: Services like Uber and DiDi are widely available across Melbourne, offering reliable options for late-night commutes or when public transport isn’t running. Students can also use local taxis via the 13CABS or Silver Top Taxi apps for convenient point-to-point travel.

Student Transit Tips: Full-time students can benefit from concession Myki cards or the International Student Travel Pass for discounted fares. Combining trains, buses, cycling, and walking ensures efficient, cost-effective travel for students living in Melbourne or rooms for rent in Melbourne.

Student Lifestyle and Tourist Attractions in Melbourne

Melbourne, known as Australia’s cultural capital, offers a lively and student-friendly environment where academics and social life thrive. Safe and popular neighbourhoods like Carlton, Fitzroy, and Southbank are close to Melbourne Institute of Technology and provide easy access to essential amenities and a multicultural atmosphere. Students can find a variety of student apartments Melbourne to suit different needs. Students often hang out at Pearson & Murphy's Café for speciality coffee, Industry Beans Fitzroy for the best cafes in Melbourne experience, or Higher Ground for a spacious and unique study environment. 


For nightlife, Revolver Upstairs is a hotspot for electronic music, The Night Cat offers live music in a relaxed atmosphere, providing a night out in Melbourne to remember, and also Cherry Bar delivers a classic rock vibe. Green spaces like Royal Park, Carlton Gardens, and Fitzroy Gardens provide tranquil settings for outdoor study or relaxing breaks. Melbourne also offers excellent learning resources. State Library Victoria provides extensive study spaces and resources, while The Wheeler Centre hosts literary events. The Baillieu Library at the University of Melbourne supports student research and learning. For healthcare, students can access The Royal Melbourne Hospital, St Vincent’s Hospital Melbourne, and Melbourne Private Hospital are also conveniently located.

Top Universities in Melbourne

Melbourne is home to several prestigious universities, attracting students from across Australia and internationally. The city offers excellent academic programmes and convenient, purpose-built student accommodations (PBSA) that include fully furnished rooms with all bills included and access to amenities. Here are the top universities in Melbourne for students:


1. Melbourne Institute of Technology (MIT): MIT offers industry-relevant programs in Business, Accounting, Information Technology, and Engineering. Some of the best accommodation near Melbourne Institute of Technology includes Scape Melbourne Central, UniLodge Melbourne Central, and Student Living on A’Beckett, providing fully furnished rooms, study areas, communal kitchens, and modern amenities.
2. RMIT University (Brunswick Campus): RMIT is a global university of technology, design, and enterprise, offering programs in engineering, arts, business, and social sciences. Popular student flats in Melbourne near RMIT include Carric Hostel and Yugo University Square, featuring furnished rooms, communal study spaces, and easy access to the city.
3. University of Melbourne: One of Australia’s leading universities, it offers diverse undergraduate and postgraduate programs. Nearby off-campus housing in Australia includes Iglu Melbourne City and Yugo University Square, offering furnished short-term student accommodation Melbourne, study lounges, gyms, and modern communal facilities for students.

.

Nearby Places

.
amber © 2025. All rights reserved.
Get the app
Payment Options
Contact us
Follow us on