Search by

Scape Toowong, Brisbane

611, Coronation Dr, Toowong, 4066, Australia
From
AU$359
per week
2.5 mi from City Center
( 9m. 16m. 51m)
See Universities on Map
Highest Floor 17
Built in 2019
Brisbane Boys' College | 0.4 mi
SAE Institute | 0.85 mi
University of Queensland | 1.34 mi
EF International Language Campu... | 1.36 mi
TAFE Queensland (Southbank Camp... | 1.66 mi
No Visa No Pay
Pay In Instalment
24/7 Gym
bills included
study area

Offers (6)

  • Save Up to AU$800+ When You Bundle Your Student Essentials!
  • AU$90 Loyalty Bonus – Rebook Your Stay with Amber!
  • Enjoy Up to AU$90 Cashback When You Book with Friends on Amber!
  • Double the Reward: Get AU$50 Each for Referring a Friend on Amber!
  • Get An Additional AU$20 Cashback By Booking Via The Amber App
  • Save Up to AUD400+ When You Bundle Your Student Essentials!

About the Property

Located at Coronation Dr, Toowong, 4066, Scape Toowong stands as a sought-after hub for student accommodation in Brisbane. Students looking to indulge in a comfortable and luxurious living experience will find the studio, ensuite, non-ensuite, and shared apartments more than ample to lead a comfortable life. These student apartments in Brisbane are located near the University of Queensland (8 minutes drive) and the SAE Institute (9 minutes drive), making the daily commute for students, effortless.

Brisbane is the capital of Queensland and a top student destination in Australia. Over 100,000 international students choose the city each year. It is known for its warm weather, relaxed lifestyle, and friendly atmosphere. Popular student areas include South Bank, West End, and Fortitude Valley. These neighbourhoods are close to food spots, study spaces, and entertainment hubs. Brisbane offers many student-friendly activities. Students can visit Streets Beach, explore Roma Street Parkland, or attend events at the Brisbane Powerhouse. The city is also close to great weekend getaways like the Gold Coast, Sunshine Coast, and Moreton Island. With a strong support network and plenty to do, Brisbane is a lively place to study and live. Brisbane is an affordable city with a lower cost of living than other major Australian cities. This makes it easier for students to manage their finances while enjoying a high quality of life. With many student-friendly neighbourhoods, check out some of the best areas to live in Brisbane. Scape Toowong Brisbane student accommodation supports students in their educational pursuits but also connects them to the heart of the city.

Features

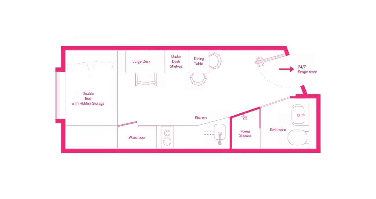
At Scape Toowong Brisbane, residents can look forward to a living experience that combines comfort with a community. Offering an array of room types including the Large Twin, King Single Bed, 5 Bedroom Ensuite, and more. Each space is tailored to meet the diverse needs of students looking for premium Brisbane student accommodation. Every room features essential room amenities like a personal study desk, a cosy bed, unlimited Wi-Fi to stay connected, a shared kitchenette for preparing meals, and air conditioning to ensure a comfortable indoor climate.

Scape Brisbane Toowong provides an extensive range of common amenities designed to foster a sense of community and enrich the student living experience. The events program brings together residents for entertaining and educational activities, while the management community ensures a well-maintained and supportive environment. For outdoor enthusiasts, the outdoor space offers a refreshing area to relax and socialise. On top of that, a cinema for movie nights, communal space for group study sessions or socializing, and a social lounge for more intimate gatherings are also present, creating an inclusive atmosphere. Engage in friendly competition in the game area, or whip up a feast in the communal kitchen. For fitness enthusiasts, staying active is convenient with an on-site gym. As for the financials, your rent here prominently includes essential utilities such as wifi, water, electricity, and heating, providing peace of mind and no extra charges. All these perks are the reason why Scape Toowong reviews are always soaring high.

Location and What's Hot?

Brisbane is home to several leading universities which offer world-class education in various fields. Toowong Scape is just a short distance away from prestigious universities like Queensland University of Technology (Gardens Point Campus) and EF International Language Campus - English Courses in Brisbane.

Brisbane is a popular destination for students due to its atmosphere and diverse attractions. Scape Towoong is situated in the city's picturesque riverside neighbourhood and is a fantastic choice for both domestic and international students. Scape Toowong provides quick access to shops and amenities due to its proximity to the Toowong Village Shopping Centre. Located just around the corner, Genkotsu Ramen Toowong is a restaurant that serves some delicious ramen. Grab a coffee at Dux Brew or try an amazing collection of drinks and food at The Walrus Club. Land Street Gallery + Studio is a beautiful art gallery, a few streets away from Scape Toowong!

Tourist Attractions in Brisbane like the Botanic Gardens and Mount Coot-Tha keep locals occupied. At a two to three-minute walk from the property, you have the Toowong Village Mall, where you can get all your necessities. Scape Toowong Brisbane is next to great monuments and places. You can visit the Toowong Memorial Park and stop by Pitch and Fork, which is a great food spot. Kayes Rocks is a cosy spot on the banks of the Brisbane River and is an eight-minute walk from the property. Just 15 public transportation, you have the Milton market, where you can get fresh local products. The Umart computer store is a few minutes by public transport from the Scape Towoong. If you want to catch great views, trek up Mount Coot, just a few minutes away from Scape Towoong, and get a great view of the Brisbane skyline.

Commute

TransLink serves South East Queensland with a uniform ticketing and electronic payment system known as a 'go card'. The CBD acts as a hub for all public transit services, with a focus on the Roma Street, Central, and Fortitude Valley railway stations. The closest bus stop is Coronation Dr at Regatta, stop 12. The Brisbane Busway network which serves Brisbane, is a dedicated bus rapid transit system. The busway stations on King George Square, Queen Street, and Roma Street serve as major network centers. The Toowong train station is also located just a stroll away from Scape Toowong Brisbane.

Video Tours

Explore the property through a virtual walkthrough and discover a variety of in house amenities all at highly affordable rents.

1:17
1:51
0:22
0:22
0:22
2:02

Room Types (12)

Clear
All (12)
Non Ensuite (4)
2B (2)
5B (2)
Studio (3)
Ensuite (1)
Non Ensuite
A private room with a shared bathroom — Provides privacy at a more affordable price
4

Ultra Twin, King Single Bed

Starting From:AU$359/week
Non Ensuite
Shared Room
Shared Bathroom
Shared Kitchen
5

8 Bedroom Shared Bathroom, Double Bed

Starting From:AU$369/week
Non Ensuite
Private Room
Shared Bathroom
Shared Kitchen
9

Large 2 Bedroom Apartment Balcony Room River Views

Starting From:AU$359/week
Non Ensuite
Private Room
Shared Bathroom
Shared Kitchen
2B
An apartment with two bedrooms, a living room, kitchen, and bathroom
4

2 Bedroom Shared Bathroom, Double Bed

Starting From:AU$439/week
2B
Private Room
Shared Bathroom
Shared Kitchen
4

2 Bedroom Shared Bathroom, Double Bed, Balcony

Starting From:AU$479/week
2B
Private Room
Shared Bathroom
Shared Kitchen
5B
An apartment with five bedrooms, a living room, kitchen, and bathroom
1

5 Bedroom Ensuite, Double Bed

Starting From:AU$469/week
5B
Private Room
Shared Bathroom
Shared Kitchen
4

5 Bedroom Shared Bathroom, Double Bed

Starting From:AU$429/week
5B
Private Room
Shared Bathroom
Shared Kitchen
Studio
All-in-one space with a bedroom, private bathroom, living area, and kitchenette — Ideal for complete independence
10

Signature Studio, Double Bed

Starting From:AU$539/week
Studio
Entire Place
Private Bathroom
Private Kitchen
1

Signature Studio, Double Bed, Views

Starting From:AU$559/week
Studio
Entire Place
Private Bathroom
Private Kitchen
5

Ultra Studio, Double Bed

Starting From:AU$699/week
Studio
Entire Place
Private Bathroom
Private Kitchen
Ensuite
A private room with its own bathroom — Offers maximum privacy and comfort
4

5 Bedroom Ensuite, Double Bed, Views

Starting From:AU$479/week
Ensuite
Private Room
Private Bathroom
Shared Kitchen
Amenities
Common Amenities
Events program
Management Community
Outdoor Space
Cinema
Communal Space
Social Lounge
Safety and Security
24/7 Security
Sonder Safety App
Bills Included
Wifi
Water
Electricity
Heating

Payment Policies (5)

  • Booking Deposit
    This property requires booking deposit.
  • Security Deposit
    This property requires security deposit.
  • Pay In Instalment
    This property offers flexible instalment plan.
Booking Deposit
<p>1. To secure your room, you need to pay a holding deposit equal to <strong>1 week’s rent</strong>.</p> <p>2. Once you sign the residential tenancy agreement, this holding deposit will be applied towards your rental bond.</p>
Security Deposit
<p>1. A bond equivalent to<strong> 4 week's rent </strong>needs to be paid prior to moving in.</p> <p>2. This is refundable at the end of the tenancy period, less any deductions and pending charges.</p>
Pay In Instalment
<p>The property accepts:</p> <p>1. Payment in full.</p> <p>2. Fortnightly payments.</p>
Mode Of Payment
<p>Credit card, Debit card and Bank transfer.</p>
Guarantor Requirement
<p>The property does not require you to provide any guarantors.</p>

Cancellation Policies (3)

  • No Visa No Pay
    This property allows cancellation due to visa rejection.
  • No Place No Pay
    This property allows cancellation if admission is not secured.
  • Cooling Off Period
    This property does not offer cooling-off period.
Cooling Off Period
<p>There is no cooling-off period for the property. You can only cancel your booking in case of visa denials.</p>
No Visa No Pay
<p>If your Australian student visa application is refused, or you are not accepted into any education facility you applied to, you may request to cancel your booking.</p> <p>We understand that some applicants secure accommodation before receiving confirmation of enrolment in a course or the issuance of an Australian student visa.</p> <p>If you have paid a holding deposit (equivalent to 1 week’s rent) and:</p> <ul> <li>Your application for an Australian student visa is refused or not granted by the Australian Government; and/or</li> </ul> <p><strong>You may submit a written request</strong> (via post or email) to cancel your booking, along with official evidence of the above circumstances.</p> <p><strong>If approved:</strong></p> <ul> <li>Your booking will be cancelled, and</li> <li>Your holding deposit and any other fees paid will be refunded.</li> </ul> <p><strong>To qualify for a full refund, you must:</strong></p> <ol> <li>Provide written proof of the relevant circumstance(s) mentioned above.</li> <li>Give a minimum of <strong>three days’ written notice</strong> before the start date of your Residential Tenancy Agreement.</li> <li>Submit a duly completed <strong>Refund Form</strong></li> </ol>
No Place No Pay
<p>If you are not accepted into any education facility you applied to, you may request to cancel your booking.</p> <p><strong>You may submit a written request</strong> (via post or email) to cancel your booking, along with official evidence of the above circumstances.</p> <p><strong>If approved:</strong></p> <ul> <li>Your booking will be cancelled, and</li> <li>Your holding deposit and any other fees paid will be refunded</li> </ul> <p><strong>To qualify for a full refund, you must:</strong></p> <ol> <li>Provide written proof of the relevant circumstance(s) mentioned above.</li> <li>Give a minimum of <strong>three days’ written notice</strong> before the start date of your Residential Tenancy Agreement.</li> <li>Submit a duly completed <strong>Refund Form</strong>.</li> </ol>
.

Frequently Asked Questions

How long does a viewing take?

Depends, does the student want to view the whole building and room or just room only.

What will I see at the viewing?

Depends, does the student want to view the whole building and room or just room only.

Who can live at the property (couple, parents)?

Students. If it’s an U18 approved building, no non-students are allowed. Couples (students) need to be subjected to room availability.

Is there an age limit for booking?

The main cohort of students in our assets are 18-25 years old. If you have someone who is not within this key group, we want to make sure they fit within the resident community hence more information about the person needs to be submitted for approval.

Can I choose who I live with?

No, unless you book with someone in a twin or apply with other tenants in a shared apartment. If you’re picky with room mates, best to book a studio.

Can I keep a fridge in my room or use additional electronics?

All rooms are furnished. You must not buy another fridge else you’ll compromise voltage allowance and May short circuit.

Are there spare rooms for visitors to stay in?

Depends. Again no visitors allowed in U18 approved buildings.

If I don’t get on with my new roommates can I change rooms?

Resolved at property level, but residents chose to live in a shared apartment so the first scenario would be mediation with a management staff.

What appliances are included in your apartment when you arrive?

Usually for qns 12, fridge is provided but common items like kettle, personal kitchenware items are not provided.

Who is responsible for cleaning?

You. Or in a shared apartment, everyone.

When will the common area cleaning commence?

From the first week of March (after check-in) and continuing throughout the year.

How often will cleaning take place?

  • 4, 5 and 6-bed apartments: once per month
  • 8 and 16-bed apartments: once per fortnight

What areas will be cleaned?

Common areas only, including:
  • Mopping and vacuuming floors
  • Dusting
  • Wiping down all hard surfaces
  • Cleaning the shared bathroom

What is not included?

  • Cleaning inside bedrooms/ensuites
  • Washing dishes or emptying dishwashers
  • Removal of rubbish
Scape Toowong, Brisbane
Instant Booking
Instant booking allows you to quickly book the property by paying the amount
Lowest Price Guaranteed
We guarantee to match the price of your accommodation if you find an identical offer on another.
Learn More
Verified Properties
We guarantee that what you see on our website is exactly what you'll get.
24x7 Personal Assistance
For any doubts or queries, a quick call is all it takes - we're here to assist you promptly.
8.2K+ Reviews
We've earned an excellent rating from over 8,700+ students for our outstanding services.

Interested in the property?

Book your Live tour today!

9 Reviews
4.9

EL
Edwin L
5.0
What a great place to live. All facilities are good, the apartment, bathroom, kitchen, rooftop, gym room, laundry, and all of the common areas are perfect. All staff are friendly and nice, who speak multiple languages, and happy to help you with anything you need.
Read more
GM
George M
5.0
Scape Toowong is located very conveniently for students with many amenities in close proximity. Ideal for students that like to live close to their campus and have everything at a hand's reach. The structure is very modern and there are many engaging events going on almost daily. Highly recommend.
Read more
ED
Evie D
5.0
Scape Toowong is honestly the best place to live!!! The amenities and facilities are amazing! The staff are so generous and helpful. They are always there to greet you every time you walk past reception and are always ready to get hands-on with whatever you need help with. THIS IS AN AMAZING PLACE TO BE AT!!
Read more
SS
Sebastian S
5.0
I stayed at Scape Toowong during my semester abroad, and I could not have found a more perfect place. It provides students with lots of services (e.g. a free bus transfer to uni) and LOTS of vocational activities, which it often provides food, beverages and entertainment. A big plus for me was the gym, which residents can use 24/7. Speaking of 24/7, there is always someone at the reception and the staff, which is super nice, is really helpful whenever you need them. Overall, I can totally recommend staying here during your time in Australia.
Read more

Nearby Properties

Student Accommodations in Brisbane

Brisbane Student Accommodation

Brisbane QLD is fast becoming one of Australia’s go-to hubs for students. The city is home to a large international student population, creating a diverse and multicultural environment. Thanks to institutions like the University of Queensland (UQ), Queensland University of Technology (QUT), James Cook University and Griffith University, there’s a strong demand for student accommodations in Brisbane that are safe, convenient, and suited to all kinds of budgets. On-campus spots tend to fill up very quickly, so many students look around for off-campus housing in Australia. This Sunshine Coast mixes leafy suburbs and buzzing urban districts.


South Bank, West End, and Fortitude Valley offer the right amount of culture, cafes, and green spaces, great for study breaks or just catching up with friends. Brisbane’s weather and relaxed vibe bring a different energy too, which many students find refreshing, contributing to a safe environment.

Amber simplifies the search for purpose-built student accommodation in South Brisbane. Purpose-built student accommodation includes off-campus, modern buildings often with gyms, study areas, and social spaces. With verified listings, transparent amenities, flexible lease options, and booking help, it reduces the stress of choosing the right place. Two standout options for student share house Brisbane are UniLodge South Bank and Scape Regent, as they are modern, well-located, and filled with features students care about. If you’re wondering where to move, there’s a great blog by amber on the best areas to live in Brisbane that paints a clear picture of which suburbs suit different student lifestyles and student experiences.

About Brisbane

Brisbane QLD, the capital city of Queensland, Australia, is one of the most dynamic and student-friendly destinations in the country. With a population of over 2.5 million people, it offers a perfect mix of urban energy and natural beauty, making it a prime location for higher education. The new city stretches along the Brisbane River, surrounded by scenic mountains and beaches, making it a great spot for outdoor enthusiasts and students who enjoy a balanced lifestyle. Founded in the early 19th century, Brisbane has transformed from a quiet river settlement into a bustling modern hub. It’s known for its year-round sunshine, thriving music and arts scene, and a youthful population that embraces Australian culture, which makes living close to campus for students living in Brisbane both lively and social. Festivals for cultural immersion like Brisbane Festival, Laneway Festival, and Riverfire draw thousands every year, giving the city an unmistakably creative vibe that resonates with Gen Z students.


When it comes to education, Brisbane is home to some of the country’s top institutions, including The University of Queensland (UQ), Queensland University of Technology (QUT), and Griffith University. Many students choose student housing in Brisbane for convenience and access to lively neighbourhoods like St Lucia and Kelvin Grove. The demand for student housing in Brisbane continues to grow as more students call the city home.

Brisbane has a happiness index of around 7.4 out of 10, thanks to its excellent weather, outdoor lifestyle, and strong community vibe. Its crime rate is moderate, with a safety index of about 65, reflecting a generally secure environment for students. All in all, student housing in Brisbane offers affordability, diversity, and a warm, welcoming atmosphere for students from around the world.

Best Student Accommodations in Brisbane

Finding the right student housing Brisbane in a convenient location can completely shape your university experience. The city has become one of Australia’s top student destinations, welcoming students for its mix of lifestyle, academic excellence, and community vibe, offering the best student life. Whether you’re studying at the University of Queensland, QUT, or Griffith University, living in comfortable, well-connected student accommodation Brisbane CBD can make all the difference. Amber offers a variety of verified student apartments in Brisbane, from shared rooms to studios, designed for students who want comfort, convenience, and a sense of belonging. With plenty of rooms for rent in Brisbane, you can find student apartments Brisbane options near universities and city hotspots like Kelvin Grove and St Lucia that fit both your budget and lifestyle. From social spaces and gyms to study zones, swimming pools and rooftop lounges. Here are some of the top student housing Brisbane:


1. Realm Kangaroo Point – From AU$946/week
2. Scape South Bank – ★★★★★ (4.6/5.0) – “lively, modern, and just minutes away from South Bank’s student hotspots.” – From AU$499/week
3. Student One Elizabeth Street – ★★★★☆ (5.0/5.0) – “Central location, great facilities, and perfect for students who love city living.” – From AU$439/week
4. Student One Wharf Street – ★★★★☆ (5.0/5.0) – “Spacious rooms with amazing communal spaces and quick access to campus.” – From AU$429/week
5. Iglu Brisbane City – ★★★★★ (5.0/5.0) – “Friendly community, secure, and one of the best-located student apartments in Brisbane.” – From AU$419/week

Affordable Student Accommodation Brisbane

Finding the right balance between comfort and cost is key when you’re looking for Student Housing in Brisbane. The city offers plenty of options from chic student apartments in Brisbane to shared off-campus housing in Australia that let you enjoy life without overspending. Whether you’re studying at Griffith University (Nathan Campus) or another nearby institution, you’ll find cheap student living options in Brisbane that are located close to campus, public transport, and the city’s buzzing hangout spots. Here are five great-value properties that make student living Brisbane easy, affordable and with more independence.


1. UniLodge Herston– From AU$199/week – “Comfortable, budget-friendly rooms with modern facilities, close to QUT and transport links.
2. Scape Tribune– From AU$269/week – “Contemporary student apartments featuring private studios, study zones, and social lounges near key universities.
3. Scape Regent– From AU$279/week – “Stylish rooms with on-site gym, rooftop terrace, and access to public transport.
4. Scape Merivale– From AU$289/week – “Premium yet affordable apartments near South Bank, with cinema rooms and study spaces.
5. Scape St Lucia– From AU$289/week – “Spacious student apartments near The University of Queensland, ideal for balanced study and leisure.

Best Areas To Live In Brisbane

Brisbane has a mix of neighbourhoods that suit every student’s lifestyle and budget. From riverside suburbs to lively inner-city districts, each area offers convenient access to major universities and the city centre. Whether you’re after modern accommodation in Brisbane for international students or shared rooms for rent in Brisbane situated close to the CBD, the city’s layout makes commuting simple (short bus ride or short walk) and student life easy (social events) to settle into.


1. St Lucia: Just 10 minutes from the University of Queensland (UQ), St Lucia is one of the most popular student neighbourhoods in Brisbane. It’s lined with cafes, bookstores, and scenic walking paths along the Brisbane River. Rent in St Lucia ranges from AUD$175 to AUD$220 per week, for shared or studio-style student accommodation Brisbane City, depending on amenities.
2. South Bank: Around 15 minutes from Griffith University and close to QUT’s Gardens Point campus, South Bank blends culture with convenience. You’ll find everything to stay connected, from riverside dining to parklands and weekend markets. Average rent is about AUD 350–500 per week. This area near South Brisbane QLD is a great place, and it suits students who want lively Brisbane student accommodation with access to both study and leisure.
3. Toowong: Located just one train stop or a 15-minute bus ride from UQ, Toowong is another student-friendly neighbourhood filled with shopping centres, gyms, and study cafes. It’s well-connected to the city via train and bus routes, making it a reliable pick for off-campus housing in Australia. Rent typically falls between AUD 320–450 per week, depending on the apartment type.
4. West End: Known for its creative vibe and multicultural dining scene, West End is home to the Australian College of Applied Professions (ACAP) - a private college specialising in fields like psychology, counselling, social work, and criminology, offering practice-oriented programs. The area is packed with trendy eateries, art galleries, and vintage stores. Students who prefer social, community-driven student housing in Brisbane will feel at home here. Average rent ranges from AUD 330–480 per week.
5. Kelvin Grove: Home to QUT’s Kelvin Grove campus, this neighbourhood is about 10 minutes from the Brisbane CBD. It’s popular among students for its affordable rent, community vibe, and proximity to campus facilities. Rent for student accommodations in Kelvin Grove typically ranges from AUD$2805 to AUD$420 per week.

Room Types Available In Brisbane

Student Residence Brisbane offers a diverse range of options to suit various preferences and budgets, ensuring every student can find a space that aligns with their lifestyle. Here's an overview of the room types available in Brisbane student accommodation:

1. Studio Apartments: Studio apartments in Brisbane are ideal for students seeking complete independence. These units include a private bedroom, bathroom, and kitchen, offering maximum privacy and convenience. These student housing options are perfect for those looking for a self-contained living space.
2. 1-Bed or 2-Bed Apartments: These apartments provide one or two private bedrooms along with shared living areas such as kitchens and lounges. They offer a balance between private space and social interaction, making them suitable for friends or small groups.
3. Shared Apartments: Shared houses consist of multiple private bedrooms within a single unit, with communal kitchens, bathrooms, and living areas. This setup encourages social interaction, making new friends and community living while still offering personal space for each resident.
4. Private Rooms: Private rooms offer students a personal bedroom with essentials like a study desk and bed, with access to shared facilities such as kitchens and lounges. These rooms suit students who want independence without complete isolation.

Cost of Living

Understanding the cost of living in Brisbane is essential for students budgeting their stay. Brisbane offers a relatively affordable lifestyle compared to other major Australian cities, with various short-term student accommodation Brisbane to suit different budgets. On average, students should plan for monthly expenses ranging from AUD 1,800 to 3,500, covering rent, food, transportation, and leisure activities. This estimate outlines typical costs to help students manage their finances effectively during their time in Brisbane. With careful budgeting and the right housemates, private rentals can be the most affordable option.


1. Accommodation
: AU$1,200–$2,400/month
2. Groceries: AU$300 – AU$600/month (Food expenses for students in Brisbane average between AU$446 and AU$714 per month)
3. Transportation: Transportation costs for students in Brisbane average between AU$89 and AU$125 per month.
4. Utilities (Gas, Electricity, Water): AU$100 – AU$150/month
5. Internet: AU$50 – AU$80/month
6. Leisure & Social Activities: AU$100 – AU$200/month

Student Travel In Brisbane

Brisbane is a lively, student-friendly city with an efficient transport system that makes commuting convenient for students. Whether you’re heading to the University of Queensland, exploring nearby neighbourhoods, or visiting local cafes and cultural hotspots, the city offers multiple transport options to suit different needs and lifestyles. Students living in student residence Brisbane or off-campus housing in Australia can travel across the city easily and affordably.

1. Train: Brisbane’s train network connects major suburbs to the city centre and campuses. Stations are strategically located near popular student accommodation in Australia, providing reliable and frequent services. Cost: Weekly student passes start at approximately £15/week. Student Passes: Concession cards are available for full-time students studying in universities.
2. Bus: The city’s extensive bus network covers both urban and suburban areas, with frequent services near universities and student neighbourhoods. Cost: Weekly travel passes for students start at £12/week, offering unlimited travel within selected zones. Bus stops are often within walking distance of rooms for rent in Brisbane.
3. Ferry: Brisbane River ferries provide a scenic commuting option, connecting central Brisbane to riverside suburbs. Cost: Weekly passes are approximately £18/week. Student Passes: Concessions are available for students with a valid ID.
4. Cycling: Brisbane promotes a bike-friendly environment with dedicated lanes and secure bike storage at many Brisbane student accommodation options. Cost: Free, aside from purchasing a bicycle. Cycling is ideal for short trips around campus or nearby neighbourhoods.

Student Transit Tips: Full-time students at the University of Queensland and other institutions may be eligible for student discounts on all public transport services. Combining trains, buses, ferries, or cycling can make commuting faster and more cost-effective, especially for those living in accommodation near the University of Queensland.

Student Lifestyle and Tourist Attractions In Brisbane

Brisbane is one of those cities that instantly makes students feel at home. Safe, sunny, and full of life, it strikes the perfect balance between study and play. The student life in Brisbane revolves around its buzzing cafes, riverside hangouts, and year-round events that make every week feel like an adventure. Whether you’re catching up on assignments or exploring the outdoors, this city never runs out of the best things to do in Brisbane. Known for its low crime rate and laid-back vibe, Brisbane’s student-friendly neighbourhoods offer access to libraries, study lounges, and cool hangout spots. Students in Brisbane can easily access a thriving restaurant scene, offering a variety of cuisines. You’ll find plenty of cafes like The Gunshop Café and Coffee Anthology, perfect for long study sessions or quick caffeine breaks.


When it’s time to unwind, students usually head to Howard Smith Wharves or Felons Brewing Co. for after-class hangouts, while Roma Street Parkland and Kangaroo Point Cliffs are local favourites for picnics, jogging, or sunset views. Nightlife in Brisbane is electric too, with hotspots like The Met and Prohibition Brisbane drawing crowds of students every weekend. Want to explore more? Here’s a quick guide to the best clubs in Brisbane.

From the Brisbane Festival and Riverfire to the Regional Flavours Food Festival, the city celebrates creativity, culture, and community year-round. These events give international students a great way to connect, experience local life, and enjoy their time beyond academics in this sunshine state.

Top Universities In Brisbane

Brisbane is home to prestigious educational institutions that attract students nationally and internationally with strong academic programs and supportive campus communities. For students seeking student housing in Brisbane, Amber properties don't provide just accommodation; they give convenience, modern amenities, and a lively student lifestyle in southern Queensland.


1. University of Queensland (UQ): UQ is a leading research university offering programs across the sciences, arts, business, and engineering. Known for its state-of-the-art campus and student support, UQ draws students from across the world. Popular student apartments in Brisbane near UQ include Scape South Bank, UniLodge Park Central, and Student One Elizabeth Street, all offering fully furnished rooms, communal study areas, and social areas.
2. Queensland University of Technology (QUT): QUT emphasises practical learning and industry connections, with campuses at Kelvin Grove and Gardens Point. Students often choose UniLodge on Margaret or Iglu Brisbane City, which provide furnished rooms, gyms, study lounges, and community areas for an ideal experience for student living Brisbane.
3. Brisbane Grammar School: Brisbane Grammar School is one of Australia’s top independent schools, offering a rigorous academic program and a focus on holistic student development. Students attending Brisbane Grammar often look for student housing Brisbane nearby. Popular Amber properties include UniLodge South Bank and Scape Toowong, which offer fully furnished apartments for students seeking quality student rentals Brisbane.

.

Nearby Places

.
amber © 2025. All rights reserved.
Get the app
Payment Options
Contact us
Follow us on: